污染源监测信息披露
时间:2022-10-15浏览:
污染源监测信息披露
单位名称:山东钢铁集团永锋临港有限公司
统一社会信用代码:91371300MA3PH4Y80L
行业类别:黑色金属冶炼和压延加工
法定代表人(实际负责人):逄晓男
技术负责人:杨永鑫
联系电话:15588936518
编制日期:2022年10月15日
一、企业基本信息
表1-1企业基本信息表
|
内容 |
备注 |
|
|
企业名称 |
山东钢铁集团永锋临港有限公司 |
|
|
社会信用代码 |
91371300MA3PH4Y80L |
|
|
注册地址 |
山东省临沂市临港开发区坪上镇中兴商务企业发展中心 |
|
|
生产地址 |
临沂临港经济开发区高端不锈钢与先进特钢园区内 |
|
|
生产经营场所中心经度 |
119°4′18.44″ |
|
|
生产经营场所中心纬度 |
35°8′11.11″ |
|
|
邮政编码 |
276600 |
|
|
行业类别 |
黑色金属冶炼和压延加工业 |
|
|
法定代表人 |
逄晓男 |
|
|
环保联系人 |
吕慧 |
|
|
联系电话 |
15589195196 |
|
|
排污许可编号 |
91371300MA3PH4Y80L001P |
|
|
环评批复文号 |
临港行审投决字[2020]59号 |
|
|
自行监测委托机构名称 |
山东君成环境检测有限公司、山东求真环境检测有限公司 |
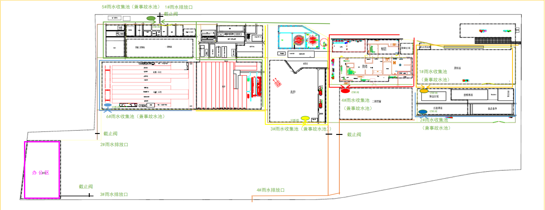
|
厂区平面布置图
二、自行监测方案
废气自行监测内容表
|
监测项目 |
排放口 |
监测点位 |
监测频次 |
执行排放标准 |
标准限值 |
监测方法 |
分析仪器 |
备注 |
|
颗粒物 |
DA001 |
原料1#除尘 |
1次/年 |
钢铁工业大气污染物排放标准DB37/990-2019 |
10mg/Nm3 |
固定污染源排气中颗粒物测定与气态污染物采样方法 GB/T 16157-1996,固定污染源废气低浓度颗粒物的测定重量HJ 836-2017 |
自动烟尘(气)测试仪 |
手工监测 |
|
颗粒物 |
DA002 |
原料2#除尘 |
1次/年 |
钢铁工业大气污染物排放标准DB37/990-2019 |
10mg/Nm3 |
固定污染源排气中颗粒物测定与气态污染物采样方法 GB/T 16157-1996,固定污染源废气低浓度颗粒物的测定重量HJ 836-2017 |
自动烟尘(气)测试仪 |
手工监测 |
|
颗粒物 |
DA003 |
原料3#除尘 |
1次/年 |
钢铁工业大气污染物排放标准DB37/990-2019 |
10mg/Nm3 |
固定污染源排气中颗粒物测定与气态污染物采样方法 GB/T 16157-1996,固定污染源废气低浓度颗粒物的测定重量HJ 836-2017 |
自动烟尘(气)测试仪 |
手工监测 |
|
颗粒物 |
DA004 |
原料4#除尘 |
1次/年 |
钢铁工业大气污染物排放标准DB37/990-2019 |
10mg/Nm3 |
固定污染源排气中颗粒物测定与气态污染物采样方法 GB/T 16157-1996,固定污染源废气低浓度颗粒物的测定重量HJ 836-2017 |
自动烟尘(气)测试仪 |
手工监测 |
|
颗粒物 |
DA005 |
原料5#除尘 |
1次/年 |
钢铁工业大气污染物排放标准DB37/990-2019 |
10mg/Nm3 |
固定污染源排气中颗粒物测定与气态污染物采样方法 GB/T 16157-1996,固定污染源废气低浓度颗粒物的测定重量HJ 836-2017 |
自动烟尘(气)测试仪 |
手工监测 |
|
颗粒物 |
DA006 |
原料6#除尘 |
1次/年 |
钢铁工业大气污染物排放标准DB37/990-2019 |
10mg/Nm3 |
固定污染源排气中颗粒物测定与气态污染物采样方法 GB/T 16157-1996,固定污染源废气低浓度颗粒物的测定重量HJ 836-2017 |
自动烟尘(气)测试仪 |
手工监测 |
|
颗粒物 |
DA007 |
原料7#除尘 |
1次/年 |
钢铁工业大气污染物排放标准DB37/990-2019 |
10mg/Nm3 |
固定污染源排气中颗粒物测定与气态污染物采样方法 GB/T 16157-1996,固定污染源废气低浓度颗粒物的测定重量HJ 836-2017 |
自动烟尘(气)测试仪 |
手工监测 |
|
颗粒物 |
DA008 |
原料8#除尘 |
1次/年 |
钢铁工业大气污染物排放标准DB37/990-2019 |
10mg/Nm3 |
固定污染源排气中颗粒物测定与气态污染物采样方法 GB/T 16157-1996,固定污染源废气低浓度颗粒物的测定重量HJ 836-2017 |
自动烟尘(气)测试仪 |
手工监测 |
|
颗粒物 |
DA058 |
原料9#除尘 |
1次/年 |
钢铁工业大气污染物排放标准DB37/990-2019 |
10mg/Nm3 |
固定污染源排气中颗粒物测定与气态污染物采样方法 GB/T 16157-1996,固定污染源废气低浓度颗粒物的测定重量HJ 836-2017 |
自动烟尘(气)测试仪 |
手工监测 |
|
颗粒物 |
DA059 |
原料10#除尘 |
1次/年 |
钢铁工业大气污染物排放标准DB37/990-2019 |
10mg/Nm3 |
固定污染源排气中颗粒物测定与气态污染物采样方法 GB/T 16157-1996,固定污染源废气低浓度颗粒物的测定重量HJ 836-2017 |
自动烟尘(气)测试仪 |
手工监测 |
|
颗粒物 |
DA060 |
原料11#除尘 |
1次/年 |
钢铁工业大气污染物排放标准DB37/990-2019 |
10mg/Nm3 |
固定污染源排气中颗粒物测定与气态污染物采样方法 GB/T 16157-1996,固定污染源废气低浓度颗粒物的测定重量HJ 836-2017 |
自动烟尘(气)测试仪 |
手工监测 |
|
颗粒物 |
DA069 |
原料12#除尘 |
1次/年 |
钢铁工业大气污染物排放标准DB37/990-2019 |
10mg/Nm3 |
固定污染源排气中颗粒物测定与气态污染物采样方法 GB/T 16157-1996,固定污染源废气低浓度颗粒物的测定重量HJ 836-2017 |
自动烟尘(气测试仪) |
手工监测 |
|
铅及其化合物 |
DA009 |
烧结球团脱硫脱硝 |
1次/季 |
钢铁工业大气污染物排放标准DB37/990-2019 |
0.9mg/Nm3 |
固定污染源废气铅的测定火焰原子吸收分光光度法HJ 685 |
原子吸收分光光度计 |
手工监测 |
|
氮氧化物 |
DA009 |
烧结球团脱硫脱硝 |
自动监测 |
钢铁工业大气污染物排放标准DB37/990-2019 |
50mg/Nm3 |
固定污染源废气 氮氧化物的测定 非分散红外吸收法HJ 692-2014,固定污染源排气中氮氧化物的测定 紫外分光光度法 HJ/T 42-1999 |
烟气自动连续监测仪 |
|
|
氟化物 |
DA009 |
烧结球团脱硫脱硝 |
1次/季 |
钢铁工业大气污染物排放标准DB37/990-2019 |
3mg/Nm3 |
大气固定污染源 氟化物的测定 离子选择电极法HJ/T 67-2001 |
氟离子电极 |
手工监测 |
|
二氧化硫 |
DA009 |
烧结球团脱硫脱硝 |
自动监测 |
钢铁工业大气污染物排放标准DB37/990-2019 |
35mg/Nm3 |
固定污染源废气 二氧化硫的测定 非分散红外吸收法HJ 629-2011,固定污染源废气 二氧化硫的测定 便携式紫外吸收法HJ 1131-2020 |
烟气自动连续监测仪 |
|
|
二噁英类 |
DA009 |
烧结球团脱硫脱硝 |
1次/年 |
钢铁工业大气污染物排放标准DB37/990-2019 |
0.5ng-TEQ/m3 |
环境空气和废气 二噁英类的测定 同位素稀释高分辨气相色谱-高分辨质谱法HJ/T 77.2-2008 |
磁式质谱仪 |
手工监测 |
|
颗粒物 |
DA009 |
烧结球团脱硫脱硝 |
自动监测 |
钢铁工业大气污染物排放标准DB37/990-2019 |
10mg/Nm3 |
固定污染源排气中颗粒物测定与气态污染物采样方法 GB/T 16157-1996,固定污染源废气低浓度颗粒物的测定重量HJ 836-2017 |
烟气自动连续监测仪 |
|
|
颗粒物 |
DA061 |
活性炭1#除尘 |
1次/年 |
钢铁工业大气污染物排放标准DB37/990-2019 |
10mg/Nm3 |
固定污染源排气中颗粒物测定与气态污染物采样方法 GB/T 16157-1996,固定污染源废气低浓度颗粒物的测定重量HJ 836-2017 |
自动烟尘(气)测试仪 |
手工监测 |
|
颗粒物 |
DA062 |
活性炭2#除尘 |
1次/年 |
钢铁工业大气污染物排放标准DB37/990-2019 |
10mg/Nm3 |
固定污染源排气中颗粒物测定与气态污染物采样方法 GB/T 16157-1996,固定污染源废气低浓度颗粒物的测定重量HJ 836-2017 |
自动烟尘(气)测试仪 |
手工监测 |
|
颗粒物 |
DA010 |
烧结机尾除尘 |
自动监测 |
钢铁工业大气污染物排放标准DB37/990-2019 |
10mg/Nm3 |
固定污染源排气中颗粒物测定与气态污染物采样方法 GB/T 16157-1996,固定污染源废气低浓度颗粒物的测定重量HJ 836-2017 |
烟气自动连续监测仪 |
|
|
颗粒物 |
DA011 |
烧结配料除尘 |
1次/季 |
钢铁工业大气污染物排放标准DB37/990-2019 |
10mg/Nm3 |
固定污染源排气中颗粒物测定与气态污染物采样方法 GB/T 16157-1996,固定污染源废气低浓度颗粒物的测定重量HJ 836-2017 |
自动烟尘(气)测试仪 |
手工监测 |
|
颗粒物 |
DA012 |
烧结燃破除尘 |
1次/年 |
钢铁工业大气污染物排放标准DB37/990-2019 |
10mg/Nm3 |
固定污染源排气中颗粒物测定与气态污染物采样方法 GB/T 16157-1996,固定污染源废气低浓度颗粒物的测定重量HJ 836-2017 |
自动烟尘(气)测试仪 |
手工监测 |
|
颗粒物 |
DA013 |
烧结筛分除尘 |
1次/季 |
钢铁工业大气污染物排放标准DB37/990-2019 |
10mg/Nm3 |
固定污染源排气中颗粒物测定与气态污染物采样方法 GB/T 16157-1996,固定污染源废气低浓度颗粒物的测定重量HJ 836-2017 |
自动烟尘(气)测试仪 |
手工监测 |
|
颗粒物 |
DA014 |
烧结一混除尘 |
1次/年 |
钢铁工业大气污染物排放标准DB37/990-2019 |
10mg/Nm3 |
固定污染源排气中颗粒物测定与气态污染物采样方法 GB/T 16157-1996,固定污染源废气低浓度颗粒物的测定重量HJ 836-2017 |
自动烟尘(气)测试仪 |
手工监测 |
|
颗粒物 |
DA015 |
烧结二混除尘 |
1次/年 |
钢铁工业大气污染物排放标准DB37/990-2019 |
10mg/Nm3 |
固定污染源排气中颗粒物测定与气态污染物采样方法 GB/T 16157-1996,固定污染源废气低浓度颗粒物的测定重量HJ 836-2017 |
自动烟尘(气)测试仪 |
手工监测 |
|
颗粒物 |
DA016 |
球团烘干机除尘 |
1次/年 |
钢铁工业大气污染物排放标准DB37/990-2019 |
10mg/Nm3 |
固定污染源排气中颗粒物测定与气态污染物采样方法 GB/T 16157-1996,固定污染源废气低浓度颗粒物的测定重量HJ 836-2017 |
自动烟尘(气)测试仪 |
手工监测 |
|
颗粒物 |
DA017 |
球团干燥一段除尘 |
1次/年 |
钢铁工业大气污染物排放标准DB37/990-2019 |
10mg/Nm3 |
固定污染源排气中颗粒物测定与气态污染物采样方法 GB/T 16157-1996,固定污染源废气低浓度颗粒物的测定重量HJ 836-2017 |
自动烟尘(气)测试仪 |
手工监测 |
|
颗粒物 |
DA018 |
球团环境除尘 |
1次/年 |
钢铁工业大气污染物排放标准DB37/990-2019 |
10mg/Nm3 |
固定污染源排气中颗粒物测定与气态污染物采样方法 GB/T 16157-1996,固定污染源废气低浓度颗粒物的测定重量HJ 836-2017 |
自动烟尘(气)测试仪 |
手工监测 |
|
颗粒物 |
DA019 |
1#高炉矿槽除尘 |
自动监测 |
钢铁工业大气污染物排放标准DB37/990-2019 |
10mg/Nm3 |
固定污染源排气中颗粒物测定与气态污染物采样方法 GB/T 16157-1996,固定污染源废气低浓度颗粒物的测定重量HJ 836-2017 |
烟气自动连续监测仪 |
|
|
颗粒物 |
DA020 |
1#高炉出铁场除尘 |
自动监测 |
钢铁工业大气污染物排放标准DB37/990-2019 |
10mg/Nm3 |
固定污染源排气中颗粒物测定与气态污染物采样方法 GB/T 16157-1996,固定污染源废气低浓度颗粒物的测定重量HJ 836-2017 |
烟气自动连续监测仪 |
|
|
颗粒物 |
DA021 |
1#喷煤收尘器 |
1次/年 |
钢铁工业大气污染物排放标准DB37/990-2019 |
10mg/Nm3 |
固定污染源排气中颗粒物测定与气态污染物采样方法 GB/T 16157-1996,固定污染源废气低浓度颗粒物的测定重量HJ 836-2017 |
自动烟尘(气)测试仪 |
手工监测 |
|
颗粒物 |
DA022 |
2#高炉矿槽除尘 |
自动监测 |
钢铁工业大气污染物排放标准DB37/990-2019 |
10mg/Nm3 |
固定污染源排气中颗粒物测定与气态污染物采样方法 GB/T 16157-1996,固定污染源废气低浓度颗粒物的测定重量HJ 836-2017 |
烟气自动连续监测仪 |
|
|
颗粒物 |
DA023 |
2#高炉出铁场除尘 |
自动监测 |
钢铁工业大气污染物排放标准DB37/990-2019 |
10mg/Nm3 |
固定污染源排气中颗粒物测定与气态污染物采样方法 GB/T 16157-1996,固定污染源废气低浓度颗粒物的测定重量HJ 836-2017 |
烟气自动连续监测仪 |
|
|
颗粒物 |
DA024 |
2#喷煤收尘器 |
1次/年 |
钢铁工业大气污染物排放标准DB37/990-2019 |
10mg/Nm3 |
固定污染源排气中颗粒物测定与气态污染物采样方法 GB/T 16157-1996,固定污染源废气低浓度颗粒物的测定重量HJ 836-2017 |
自动烟尘(气)测试仪 |
手工监测 |
|
氮氧化物 |
DA025 |
1#高炉热风炉脱硫 |
自动监测 |
钢铁工业大气污染物排放标准DB37/990-2019 |
150mg/Nm3 |
固定污染源废气 氮氧化物的测定 非分散红外吸收法HJ 692-2014,固定污染源排气中氮氧化物的测定 紫外分光光度法 HJ/T 42-1999 |
烟气自动连续监测仪 |
|
|
二氧化硫 |
DA025 |
1#高炉热风炉脱硫 |
自动监测 |
钢铁工业大气污染物排放标准DB37/990-2019 |
50mg/Nm3 |
固定污染源废气 二氧化硫的测定 非分散红外吸收法HJ 629-2011,固定污染源废气 二氧化硫的测定 便携式紫外吸收法HJ 1131-2020 |
烟气自动连续监测仪 |
|
|
颗粒物 |
DA025 |
1#高炉热风炉脱硫 |
自动监测 |
钢铁工业大气污染物排放标准DB37/990-2019 |
10mg/Nm3 |
固定污染源排气中颗粒物测定与气态污染物采样方法 GB/T 16157-1996,固定污染源废气低浓度颗粒物的测定重量HJ 836-2017 |
烟气自动连续监测仪 |
|
|
氮氧化物 |
DA026 |
2#高炉热风炉脱硫 |
自动监测 |
钢铁工业大气污染物排放标准DB37/990-2019 |
150mg/Nm3 |
固定污染源废气 氮氧化物的测定 非分散红外吸收法HJ 692-2014,固定污染源排气中氮氧化物的测定 紫外分光光度法 HJ/T 42-1999 |
烟气自动连续监测仪 |
|
|
二氧化硫 |
DA026 |
2#高炉热风炉脱硫 |
自动监测 |
钢铁工业大气污染物排放标准DB37/990-2019 |
50mg/Nm3 |
固定污染源废气 二氧化硫的测定 非分散红外吸收法HJ 629-2011,固定污染源废气 二氧化硫的测定 便携式紫外吸收法HJ 1131-2020 |
烟气自动连续监测仪 |
|
|
颗粒物 |
DA026 |
2#高炉热风炉脱硫 |
自动监测 |
钢铁工业大气污染物排放标准DB37/990-2019 |
10mg/Nm3 |
固定污染源排气中颗粒物测定与气态污染物采样方法 GB/T 16157-1996,固定污染源废气低浓度颗粒物的测定重量HJ 836-2017 |
烟气自动连续监测仪 |
|
|
颗粒物 |
DA028 |
1#转炉一次除尘 |
1次/年 |
钢铁工业大气污染物排放标准DB37/990-2019 |
20mg/Nm3 |
固定污染源排气中颗粒物测定与气态污染物采样方法 GB/T 16157-1996,固定污染源废气低浓度颗粒物的测定重量HJ 836-2017 |
自动烟尘(气)测试仪 |
手工监测 |
|
颗粒物 |
DA029 |
1#转炉二次除尘 |
自动监测 |
钢铁工业大气污染物排放标准DB37/990-2019 |
10mg/Nm3 |
固定污染源排气中颗粒物测定与气态污染物采样方法 GB/T 16157-1996,固定污染源废气低浓度颗粒物的测定重量HJ 836-2017 |
烟气自动连续监测仪 |
|
|
颗粒物 |
DA030 |
转炉三次除尘 |
1次/季 |
钢铁工业大气污染物排放标准DB37/990-2019 |
10mg/Nm3 |
固定污染源排气中颗粒物测定与气态污染物采样方法 GB/T 16157-1996,固定污染源废气低浓度颗粒物的测定重量HJ 836-2017 |
自动烟尘(气)测试仪 |
手工监测 |
|
颗粒物 |
DA031 |
转炉上料除尘 |
1次/年 |
钢铁工业大气污染物排放标准DB37/990-2019 |
10mg/Nm3 |
固定污染源排气中颗粒物测定与气态污染物采样方法 GB/T 16157-1996,固定污染源废气低浓度颗粒物的测定重量HJ 836-2017 |
自动烟尘(气)测试仪 |
手工监测 |
|
颗粒物 |
DA032 |
2#转炉一次除尘 |
1次/年 |
钢铁工业大气污染物排放标准DB37/990-2019 |
20mg/Nm3 |
固定污染源排气中颗粒物测定与气态污染物采样方法 GB/T 16157-1996,固定污染源废气低浓度颗粒物的测定重量HJ 836-2017 |
自动烟尘(气)测试仪 |
手工监测 |
|
颗粒物 |
DA033 |
2#转炉二次除尘 |
自动监测 |
钢铁工业大气污染物排放标准DB37/990-2019 |
10mg/Nm3 |
固定污染源排气中颗粒物测定与气态污染物采样方法 GB/T 16157-1996,固定污染源废气低浓度颗粒物的测定重量HJ 836-2017 |
烟气自动连续监测仪 |
|
|
颗粒物 |
DA037 |
连铸大包除尘 |
1次/年 |
钢铁工业大气污染物排放标准DB37/990-2019 |
10mg/Nm3 |
固定污染源排气中颗粒物测定与气态污染物采样方法 GB/T 16157-1996,固定污染源废气低浓度颗粒物的测定重量HJ 836-2017 |
自动烟尘(气)测试仪 |
手工监测 |
|
颗粒物 |
DA038 |
石灰窑受料槽除尘 |
1次/年 |
钢铁工业大气污染物排放标准DB37/990-2019 |
10mg/Nm3 |
固定污染源排气中颗粒物测定与气态污染物采样方法 GB/T 16157-1996,固定污染源废气低浓度颗粒物的测定重量HJ 836-2017 |
自动烟尘(气)测试仪 |
手工监测 |
|
氮氧化物 |
DA039 |
1#石灰窑焙烧除尘 |
自动监测 |
区域性大气污染物综合排放标准DB37/2376-2019 |
100mg/Nm3 |
固定污染源废气 氮氧化物的测定 非分散红外吸收法HJ 692-2014,固定污染源排气中氮氧化物的测定 紫外分光光度法 HJ/T 42-1999 |
烟气自动连续监测仪 |
|
|
二氧化硫 |
DA039 |
1#石灰窑焙烧除尘 |
自动监测 |
区域性大气污染物综合排放标准DB37/2376-2019 |
50mg/Nm3 |
固定污染源废气 二氧化硫的测定 非分散红外吸收法HJ 629-2011,固定污染源废气 二氧化硫的测定 便携式紫外吸收法HJ 1131-2020 |
烟气自动连续监测仪 |
|
|
颗粒物 |
DA039 |
1#石灰窑焙烧除尘 |
自动监测 |
钢铁工业大气污染物排放标准DB37/990-2019 |
10mg/Nm3 |
固定污染源排气中颗粒物测定与气态污染物采样方法 GB/T 16157-1996,固定污染源废气低浓度颗粒物的测定重量HJ 836-2017 |
烟气自动连续监测仪 |
|
|
氮氧化物 |
DA070 |
2#石灰窑焙烧除尘 |
自动监测 |
区域性大气污染物综合排放标准DB37/2376-2019 |
100mg/Nm3 |
固定污染源废气 氮氧化物的测定 非分散红外吸收法HJ 692-2014,固定污染源排气中氮氧化物的测定 紫外分光光度法 HJ/T 42-1999 |
烟气自动连续监测仪 |
|
|
二氧化硫 |
DA070 |
2#石灰窑焙烧除尘 |
自动监测 |
区域性大气污染物综合排放标准DB37/2376-2019 |
50mg/Nm3 |
固定污染源废气 二氧化硫的测定 非分散红外吸收法HJ 629-2011,固定污染源废气 二氧化硫的测定 便携式紫外吸收法HJ 1131-2020 |
烟气自动连续监测仪 |
|
|
颗粒物 |
DA070 |
2#石灰窑焙烧除尘 |
自动监测 |
钢铁工业大气污染物排放标准DB37/990-2019 |
10mg/Nm3 |
固定污染源排气中颗粒物测定与气态污染物采样方法 GB/T 16157-1996,固定污染源废气低浓度颗粒物的测定重量HJ 836-2017 |
烟气自动连续监测仪 |
|
|
颗粒物 |
DA040 |
石灰窑原料除尘 |
1次/年 |
钢铁工业大气污染物排放标准DB37/990-2019 |
10mg/Nm3 |
固定污染源排气中颗粒物测定与气态污染物采样方法 GB/T 16157-1996,固定污染源废气低浓度颗粒物的测定重量HJ 836-2017 |
自动烟尘(气)测试仪 |
手工监测 |
|
颗粒物 |
DA041 |
石灰窑成品除尘 |
1次/年 |
钢铁工业大气污染物排放标准DB37/990-2019 |
10mg/Nm3 |
固定污染源排气中颗粒物测定与气态污染物采样方法 GB/T 16157-1996,固定污染源废气低浓度颗粒物的测定重量HJ 836-2017 |
自动烟尘(气)测试仪 |
手工监测 |
|
氮氧化物 |
DA042 |
1#加热炉空烟 |
1次/季 |
钢铁工业大气污染物排放标准DB37/990-2019 |
150mg/Nm3 |
固定污染源废气 氮氧化物的测定 非分散红外吸收法HJ 692-2014,固定污染源排气中氮氧化物的测定 紫外分光光度法 HJ/T 42-1999 |
紫外差分烟气综合分析仪 |
手工监测 |
|
二氧化硫 |
DA042 |
1#加热炉空烟 |
1次/季 |
钢铁工业大气污染物排放标准DB37/990-2019 |
50mg/Nm3 |
固定污染源废气 二氧化硫的测定 非分散红外吸收法HJ 629-2011,固定污染源废气 二氧化硫的测定 便携式紫外吸收法HJ 1131-2020 |
紫外差分烟气综合分析仪 |
手工监测 |
|
颗粒物 |
DA042 |
1#加热炉空烟 |
1次/季 |
钢铁工业大气污染物排放标准DB37/990-2019 |
10mg/Nm3 |
固定污染源排气中颗粒物测定与气态污染物采样方法 GB/T 16157-1996,固定污染源废气低浓度颗粒物的测定重量HJ 836-2017 |
自动烟尘(气)测试仪 |
手工监测 |
|
氮氧化物 |
DA043 |
1#加热炉煤烟 |
1次/季 |
钢铁工业大气污染物排放标准DB37/990-2019 |
150mg/Nm3 |
固定污染源废气 氮氧化物的测定 非分散红外吸收法HJ 692-2014,固定污染源排气中氮氧化物的测定 紫外分光光度法 HJ/T 42-1999 |
紫外差分烟气综合分析仪 |
手工监测 |
|
二氧化硫 |
DA043 |
1#加热炉煤烟 |
1次/季 |
钢铁工业大气污染物排放标准DB37/990-2019 |
50mg/Nm3 |
固定污染源废气 二氧化硫的测定 非分散红外吸收法HJ 629-2011,固定污染源废气 二氧化硫的测定 便携式紫外吸收法HJ 1131-2020 |
紫外差分烟气综合分析仪 |
手工监测 |
|
颗粒物 |
DA043 |
1#加热炉煤烟 |
1次/季 |
钢铁工业大气污染物排放标准DB37/990-2019 |
10mg/Nm3 |
固定污染源排气中颗粒物测定与气态污染物采样方法 GB/T 16157-1996,固定污染源废气低浓度颗粒物的测定重量HJ 836-2017 |
自动烟尘(气)测试仪 |
手工监测 |
|
氮氧化物 |
DA044 |
2#加热炉空烟 |
1次/季 |
钢铁工业大气污染物排放标准DB37/990-2019 |
150mg/Nm3 |
固定污染源废气 氮氧化物的测定 非分散红外吸收法HJ 692-2014,固定污染源排气中氮氧化物的测定 紫外分光光度法 HJ/T 42-1999 |
紫外差分烟气综合分析仪 |
手工监测 |
|
二氧化硫 |
DA044 |
2#加热炉空烟 |
1次/季 |
钢铁工业大气污染物排放标准DB37/990-2019 |
50mg/Nm3 |
固定污染源废气 二氧化硫的测定 非分散红外吸收法HJ 629-2011,固定污染源废气 二氧化硫的测定 便携式紫外吸收法HJ 1131-2020 |
紫外差分烟气综合分析仪 |
手工监测 |
|
颗粒物 |
DA044 |
2#加热炉空烟 |
1次/季 |
钢铁工业大气污染物排放标准DB37/990-2019 |
10mg/Nm3 |
固定污染源排气中颗粒物测定与气态污染物采样方法 GB/T 16157-1996,固定污染源废气低浓度颗粒物的测定重量HJ 836-2017 |
自动烟尘(气)测试仪 |
手工监测 |
|
氮氧化物 |
DA045 |
2#加热炉煤烟 |
1次/季 |
钢铁工业大气污染物排放标准DB37/990-2019 |
150mg/Nm3 |
固定污染源废气 氮氧化物的测定 非分散红外吸收法HJ 692-2014,固定污染源排气中氮氧化物的测定 紫外分光光度法 HJ/T 42-1999 |
紫外差分烟气综合分析仪 |
手工监测 |
|
二氧化硫 |
DA045 |
2#加热炉煤烟 |
1次/季 |
钢铁工业大气污染物排放标准DB37/990-2019 |
50mg/Nm3 |
固定污染源废气 二氧化硫的测定 非分散红外吸收法HJ 629-2011,固定污染源废气 二氧化硫的测定 便携式紫外吸收法HJ 1131-2020 |
紫外差分烟气综合分析仪 |
手工监测 |
|
颗粒物 |
DA045 |
2#加热炉煤烟 |
1次/季 |
钢铁工业大气污染物排放标准DB37/990-2019 |
10mg/Nm3 |
固定污染源排气中颗粒物测定与气态污染物采样方法 GB/T 16157-1996,固定污染源废气 二氧化硫的测定 便携式紫外吸收法HJ 1131-2020 |
自动烟尘(气)测试仪 |
手工监测 |
|
氮氧化物 |
DA046 |
3#加热炉空烟 |
1次/季 |
钢铁工业大气污染物排放标准DB37/990-2019 |
150mg/Nm3 |
固定污染源废气 氮氧化物的测定 非分散红外吸收法HJ 692-2014,固定污染源排气中氮氧化物的测定 紫外分光光度法 HJ/T 42-1999 |
紫外差分烟气综合分析仪 |
手工监测 |
|
二氧化硫 |
DA046 |
3#加热炉空烟 |
1次/季 |
钢铁工业大气污染物排放标准DB37/990-2019 |
50mg/Nm3 |
固定污染源废气 二氧化硫的测定 非分散红外吸收法HJ 629-2011,固定污染源废气 二氧化硫的测定 便携式紫外吸收法HJ 1131-2020 |
紫外差分烟气综合分析仪 |
手工监测 |
|
颗粒物 |
DA046 |
3#加热炉空烟 |
1次/季 |
钢铁工业大气污染物排放标准DB37/990-2019 |
10mg/Nm3 |
固定污染源排气中颗粒物测定与气态污染物采样方法 GB/T 16157-1996,固定污染源废气低浓度颗粒物的测定重量HJ 836-2017 |
自动烟尘(气)测试仪 |
手工监测 |
|
氮氧化物 |
DA047 |
3#加热炉煤烟 |
1次/季 |
钢铁工业大气污染物排放标准DB37/990-2019 |
150mg/Nm3 |
固定污染源废气 氮氧化物的测定 非分散红外吸收法HJ 692-2014,固定污染源排气中氮氧化物的测定 紫外分光光度法 HJ/T 42-1999 |
紫外差分烟气综合分析仪 |
手工监测 |
|
二氧化硫 |
DA047 |
3#加热炉煤烟 |
1次/季 |
钢铁工业大气污染物排放标准DB37/990-2019 |
50mg/Nm3 |
固定污染源废气 二氧化硫的测定 非分散红外吸收法HJ 629-2011,固定污染源废气 二氧化硫的测定 便携式紫外吸收法HJ 1131-2020 |
紫外差分烟气综合分析仪 |
手工监测 |
|
颗粒物 |
DA047 |
3#加热炉煤烟 |
1次/季 |
钢铁工业大气污染物排放标准DB37/990-2019 |
10mg/Nm3 |
固定污染源排气中颗粒物测定与气态污染物采样方法 GB/T 16157-1996,固定污染源废气低浓度颗粒物的测定重量HJ 836-2017 |
自动烟尘(气)测试仪 |
手工监测 |
|
氮氧化物 |
DA048 |
4#加热炉空烟 |
1次/季 |
钢铁工业大气污染物排放标准DB37/990-2019 |
150mg/Nm3 |
固定污染源废气 氮氧化物的测定 非分散红外吸收法HJ 692-2014,固定污染源排气中氮氧化物的测定 紫外分光光度法 HJ/T 42-1999 |
紫外差分烟气综合分析仪 |
手工监测 |
|
二氧化硫 |
DA048 |
4#加热炉空烟 |
1次/季 |
钢铁工业大气污染物排放标准DB37/990-2019 |
50mg/Nm3 |
固定污染源废气 二氧化硫的测定 非分散红外吸收法HJ 629-2011,固定污染源废气 二氧化硫的测定 便携式紫外吸收法HJ 1131-2020 |
紫外差分烟气综合分析仪 |
手工监测 |
|
颗粒物 |
DA048 |
4#加热炉空烟 |
1次/季 |
钢铁工业大气污染物排放标准DB37/990-2019 |
10mg/Nm3 |
固定污染源排气中颗粒物测定与气态污染物采样方法 GB/T 16157-1996,固定污染源废气低浓度颗粒物的测定重量HJ 836-2017 |
自动烟尘(气)测试仪 |
手工监测 |
|
氮氧化物 |
DA049 |
4#加热炉煤烟 |
1次/季 |
钢铁工业大气污染物排放标准DB37/990-2019 |
150mg/Nm3 |
固定污染源废气 氮氧化物的测定 非分散红外吸收法HJ 692-2014,固定污染源排气中氮氧化物的测定 紫外分光光度法 HJ/T 42-1999 |
紫外差分烟气综合分析仪 |
手工监测 |
|
二氧化硫 |
DA049 |
4#加热炉煤烟 |
1次/季 |
钢铁工业大气污染物排放标准DB37/990-2019 |
50mg/Nm3 |
固定污染源废气 二氧化硫的测定 非分散红外吸收法HJ 629-2011,固定污染源废气 二氧化硫的测定 便携式紫外吸收法HJ 1131-2020 |
紫外差分烟气综合分析仪 |
手工监测 |
|
颗粒物 |
DA049 |
4#加热炉煤烟 |
1次/季 |
钢铁工业大气污染物排放标准DB37/990-2019 |
10mg/Nm3 |
固定污染源排气中颗粒物测定与气态污染物采样方法 GB/T 16157-1996,固定污染源废气低浓度颗粒物的测定重量HJ 836-2017 |
自动烟尘(气)测试仪 |
手工监测 |
|
林格曼黑度 |
DA050 |
煤气发电锅炉脱硫 |
1次/季 |
山东省火电厂大气污染物排放标准DB37/ 664-2019 |
1级 |
固定污染源排放烟气黑度的测定 林格曼烟气黑度图法HJ/T 398-2007 |
格林曼黑度计 |
手工监测 |
|
氮氧化物 |
DA050 |
煤气发电锅炉脱硫 |
自动监测 |
山东省火电厂大气污染物排放标准DB37/ 664-2019 |
100mg/Nm3 |
固定污染源废气 氮氧化物的测定 非分散红外吸收法HJ 692-2014,固定污染源排气中氮氧化物的测定 紫外分光光度法 HJ/T 42-1999 |
烟气自动连续监测仪 |
|
|
二氧化硫 |
DA050 |
煤气发电锅炉脱硫 |
自动监测 |
山东省火电厂大气污染物排放标准DB37/ 664-2019 |
35mg/Nm3 |
固定污染源废气 二氧化硫的测定 非分散红外吸收法HJ 629-2011,固定污染源废气 二氧化硫的测定 便携式紫外吸收法HJ 1131-2020 |
烟气自动连续监测仪 |
|
|
颗粒物 |
DA050 |
煤气发电锅炉脱硫 |
自动监测 |
山东省火电厂大气污染物排放标准DB37/ 664-2019 |
5mg/Nm3 |
固定污染源排气中颗粒物测定与气态污染物采样方法 GB/T 16157-1996,固定污染源废气低浓度颗粒物的测定重量HJ 836-2017 |
烟气自动连续监测仪 |
|
|
氮氧化物 |
DA051 |
原料块矿烘干除尘器 |
1次/季 |
区域性大气污染物综合排放标准DB37/2376-2019 |
100mg/Nm3 |
固定污染源废气 氮氧化物的测定 非分散红外吸收法HJ 692-2014,固定污染源排气中氮氧化物的测定 紫外分光光度法 HJ/T 42-1999 |
紫外差分烟气综合分析仪 |
手工监测 |
|
二氧化硫 |
DA051 |
原料块矿烘干除尘器 |
1次/季 |
区域性大气污染物综合排放标准DB37/2376-2019 |
50mg/Nm3 |
固定污染源废气 二氧化硫的测定 非分散红外吸收法HJ 629-2011,固定污染源废气 二氧化硫的测定 便携式紫外吸收法HJ 1131-2020 |
紫外差分烟气综合分析仪 |
手工监测 |
|
颗粒物 |
DA051 |
原料块矿烘干除尘器 |
1次/季 |
区域性大气污染物综合排放标准DB37/2376-2019 |
10mg/Nm3 |
固定污染源排气中颗粒物测定与气态污染物采样方法 GB/T 16157-1996,固定污染源废气低浓度颗粒物的测定重量HJ 836-2017 |
自动烟尘(气)测试仪 |
手工监测 |
|
颗粒物 |
DA052 |
钢渣卸车间除尘 |
1次/年 |
钢铁工业大气污染物排放标准DB37/990-2019 |
10mg/Nm3 |
固定污染源排气中颗粒物测定与气态污染物采样方法 GB/T 16157-1996,固定污染源废气低浓度颗粒物的测定重量HJ 836-2017 |
自动烟尘(气)测试仪 |
手工监测 |
|
颗粒物 |
DA053 |
除尘灰处理窑头及上料除尘 |
1次/年 |
钢铁工业大气污染物排放标准DB37/990-2019 |
10mg/Nm3 |
固定污染源排气中颗粒物测定与气态污染物采样方法 GB/T 16157-1996,固定污染源废气低浓度颗粒物的测定重量HJ 836-2017 |
自动烟尘(气)测试仪 |
手工监测 |
|
氮氧化物 |
DA054 |
矿渣粉磨除尘 |
1次/季 |
区域性大气污染物综合排放标准DB37/2376-2019 |
100mg/Nm3 |
固定污染源废气 氮氧化物的测定 非分散红外吸收法HJ 692-2014,固定污染源排气中氮氧化物的测定 紫外分光光度法 HJ/T 42-1999 |
紫外差分烟气综合分析仪 |
手工监测 |
|
二氧化硫 |
DA054 |
矿渣粉磨除尘 |
1次/季 |
区域性大气污染物综合排放标准DB37/2376-2019 |
50mg/Nm3 |
固定污染源废气 二氧化硫的测定 非分散红外吸收法HJ 629-2011,固定污染源废气 二氧化硫的测定 便携式紫外吸收法HJ 1131-2020 |
紫外差分烟气综合分析仪 |
手工监测 |
|
颗粒物 |
DA054 |
矿渣粉磨除尘 |
1次/季 |
区域性大气污染物综合排放标准DB37/2376-2019 |
10mg/Nm3 |
固定污染源排气中颗粒物测定与气态污染物采样方法 GB/T 16157-1996,固定污染源废气低浓度颗粒物的测定重量HJ 836-2017 |
自动烟尘(气)测试仪 |
手工监测 |
|
颗粒物 |
DA063 |
微粉仓顶1#除尘 |
1次/年 |
钢铁工业大气污染物排放标准DB37/990-2019 |
10mg/Nm3 |
固定污染源排气中颗粒物测定与气态污染物采样方法 GB/T 16157-1996,固定污染源废气低浓度颗粒物的测定重量HJ 836-2017 |
自动烟尘(气)测试仪 |
手工监测 |
|
颗粒物 |
DA064 |
微粉仓顶2#除尘 |
1次/年 |
钢铁工业大气污染物排放标准DB37/990-2019 |
10mg/Nm3 |
固定污染源排气中颗粒物测定与气态污染物采样方法 GB/T 16157-1996,固定污染源废气低浓度颗粒物的测定重量HJ 836-2017 |
自动烟尘(气)测试仪 |
手工监测 |
|
颗粒物 |
DA065 |
微粉仓顶3#除尘 |
1次/年 |
钢铁工业大气污染物排放标准DB37/990-2019 |
10mg/Nm3 |
固定污染源排气中颗粒物测定与气态污染物采样方法 GB/T 16157-1996,固定污染源废气低浓度颗粒物的测定重量HJ 836-2017 |
自动烟尘(气)测试仪 |
手工监测 |
|
颗粒物 |
DA066 |
微粉仓顶4#除尘 |
1次/年 |
钢铁工业大气污染物排放标准DB37/990-2019 |
10mg/Nm3 |
固定污染源排气中颗粒物测定与气态污染物采样方法 GB/T 16157-1996,固定污染源废气低浓度颗粒物的测定重量HJ 836-2017 |
自动烟尘(气)测试仪 |
手工监测 |
|
颗粒物 |
DA067 |
微粉仓底除尘 |
1次/年 |
钢铁工业大气污染物排放标准DB37/990-2019 |
10mg/Nm3 |
固定污染源排气中颗粒物测定与气态污染物采样方法 GB/T 16157-1996,固定污染源废气低浓度颗粒物的测定重量HJ 836-2017 |
自动烟尘(气)测试仪 |
手工监测 |
|
颗粒物 |
DA055 |
1#钢渣湿电除尘 |
1次/年 |
钢铁工业大气污染物排放标准DB37/990-2019 |
20mg/Nm3 |
固定污染源排气中颗粒物测定与气态污染物采样方法 GB/T 16157-1996,固定污染源废气低浓度颗粒物的测定重量HJ 836-2017 |
自动烟尘(气)测试仪 |
手工监测 |
|
颗粒物 |
DA056 |
2#钢渣湿电除尘 |
1次/年 |
钢铁工业大气污染物排放标准DB37/990-2019 |
20mg/Nm3 |
固定污染源排气中颗粒物测定与气态污染物采样方法 GB/T 16157-1996,固定污染源废气低浓度颗粒物的测定重量HJ 836-2017 |
自动烟尘(气)测试仪 |
手工监测 |
|
颗粒物 |
DA057 |
钢渣二次处理除尘 |
1次/年 |
钢铁工业大气污染物排放标准DB37/990-2019 |
10mg/Nm3 |
固定污染源排气中颗粒物测定与气态污染物采样方法 GB/T 16157-1996,固定污染源废气低浓度颗粒物的测定重量HJ 836-2017 |
自动烟尘(气)测试仪 |
手工监测 |
|
污染物排放方式及排放去向 |
净化处理后,通过排气筒高空排放 |
|||||||
|
采样和样品保存方法 |
废气手工采样方法的选择参照相关污染物排放标准及 GB/T 16157、HJ/T 397 等执行。废气自动监测参照 HJ/T 75、HJ/T 76执行。 |
|||||||
|
监测质量控制措施 |
1、监测人员严格执行环境监测技术规范。 |
|||||||
|
监测结果公开时限 |
依据《国家重点监控企业自行监测及信息公开办法》及《排污单位自行监测技术指南 钢铁工业及炼焦化学工业》的频次进行监测,监测完成后一周内向社会公开信息。 |
|||||||
|
备注 |
|
|||||||
废水自行监测内容表
|
监测项目 |
排放口 |
监测点位 |
监测频次 |
执行排放标准 |
标准限值 |
监测方法 |
分析仪器 |
备注 |
|
pH 值 |
DW001 |
烧结球团脱硫车间废水排放口 |
1 次/月 |
钢铁工业水污染物排放标准(GB13456-2012) |
/ |
玻璃电极法 |
PH 计 |
手工监测 |
|
悬浮物 |
DW001 |
烧结球团脱硫车间废水排放口 |
1 次/月 |
钢铁工业水污染物排放标准(GB13456-2012) |
/ |
重量法 |
悬浮物测定仪 |
手工监测 |
|
化学需氧量 |
DW001 |
烧结球团脱硫车间废水排放口 |
1 次/月 |
钢铁工业水污染物排放标准(GB13456-2012) |
/ |
重铬酸盐法 |
消解仪 |
手工监测 |
|
石油类 |
DW001 |
烧结球团脱硫车间废水排放口 |
1 次/月 |
钢铁工业水污染物排放标准(GB13456-2012) |
/ |
红外分光光度法 |
分光光度计 |
手工监测 |
|
总砷 |
DW001 |
烧结球团脱硫车间废水排放口 |
1 次/月 |
钢铁工业水污染物排放标准(GB13456-2012) |
0.5 mg/L |
原子荧光法 |
原子荧光光度计 |
手工监测 |
|
总铅 |
DW001 |
烧结球团脱硫车间废水排放口 |
1 次/月 |
钢铁工业水污染物排放标准(GB13456-2012) |
1.0 mg/L |
原子吸收分光光度法 |
原子吸收分光光度计 |
手工监测 |
|
总铊 |
DW001 |
烧结球团脱硫车间废水排放口 |
1 次/半年 |
《钢铁工业水污染物排放标准(GB 13456-2012)修改单 |
0.05mg/L |
电感耦合等离子体质谱法 |
电感耦合等离子体质谱法 |
手工监测 |
|
流量 |
DW001 |
烧结球团脱硫车间废水排放口 |
1 次/月 |
钢铁工业水污染物排放标准(GB13456-2012) |
/ |
流速仪法 |
流量计 |
手工监测 |
|
总砷 |
DW003 |
轧钢一车间废水排放口 |
1 次/月 |
钢铁工业水污染物排放标准(GB13456-2012) |
0.5 mg/L |
原子荧光法 |
原子荧光光度计 |
手工监测 |
|
六价铬 |
DW003 |
轧钢一车间废水排放口 |
1 次/月 |
钢铁工业水污染物排放标准(GB13456-2012) |
0.5 mg/L |
二苯碳酰二肼分光光度法 |
分光光度计 |
手工监测 |
|
总镉 |
DW003 |
轧钢一车间废水排放口 |
1 次/月 |
钢铁工业水污染物排放标准(GB13456-2012) |
0.1 mg/L |
原子吸收分光 |
原子荧光光度计 |
手工监测 |
|
总镍 |
DW003 |
轧钢一车间废水排放口 |
1 次/月 |
钢铁工业水污染物排放标准(GB13456-2012) |
1.0 mg/L |
火焰原子吸收分光光度法 |
分光光度计 |
手工监测 |
|
总铬 |
DW003 |
轧钢一车间废水排放口 |
1 次/月 |
钢铁工业水污染物排放标准(GB13456-2012) |
1.5 mg/L |
锰酸钾氧化-二苯碳酰二肼分光光度法 |
分光光度计 |
手工监测 |
|
总汞 |
DW003 |
轧钢一车间废水排放口 |
1 次/月 |
钢铁工业水污染物排放标准(GB13456-2012) |
0.05 mg/L |
高锰酸钾-过硫酸钾消解法双硫腙分光光度法 |
分光光度计 |
手工监测 |
|
总砷 |
DW004 |
轧钢二车间废水排放口 |
1 次/月 |
钢铁工业水污染物排放标准(GB13456-2012) |
0.5 mg/L |
原子荧光法 |
原子荧光光度计 |
手工监测 |
|
六价铬 |
DW004 |
轧钢二车间废水排放口 |
1 次/月 |
钢铁工业水污染物排放标准(GB13456-2012) |
0.5 mg/L |
二苯碳酰二肼分光光度法 |
分光光度计 |
手工监测 |
|
总镉 |
DW004 |
轧钢二车间废水排放口 |
1 次/月 |
钢铁工业水污染物排放标准(GB13456-2012) |
0.1 mg/L |
原子吸收分光 |
原子荧光光度计 |
手工监测 |
|
总镍 |
DW004 |
轧钢二车间废水排放口 |
1 次/月 |
钢铁工业水污染物排放标准(GB13456-2012) |
1.0 mg/L |
火焰原子吸收分光光度法 |
分光光度计 |
手工监测 |
|
总铬 |
DW004 |
轧钢二车间废水排放口 |
1 次/月 |
钢铁工业水污染物排放标准(GB13456-2012) |
1.5 mg/L |
锰酸钾氧化-二苯碳酰二肼分光光度法 |
分光光度计 |
手工监测 |
|
总汞 |
DW004 |
轧钢二车间废水排放口 |
1 次/月 |
钢铁工业水污染物排放标准(GB13456-2012) |
0.05 mg/L |
高锰酸钾-过硫酸钾消解法双硫腙分光光度法 |
分光光度计 |
手工监测 |
|
PH |
YS001 |
1#雨水排放口 |
有流量的情况下每日一次 |
流域水污染物综合排放标准第2部分:沂沭河流域(DB37/3416.2—2018) |
6~9 |
玻璃电极法 |
PH计 |
手工监测 |
|
悬浮物 |
YS001 |
1#雨水排放口 |
有流量的情况下每日一次 |
流域水污染物综合排放标准第2部分:沂沭河流域(DB37/3416.2—2018) |
20 mg/L |
重量法 |
电子天平 |
手工监测 |
|
化学需氧量 |
YS001 |
1#雨水排放口 |
有流量的情况下每日一次 |
流域水污染物综合排放标准第2部分:沂沭河流域(DB37/3416.2—2018) |
40 mg/L |
重铬酸盐法 |
消解仪 |
手工监测 |
|
石油类 |
YS001 |
1#雨水排放口 |
有流量的情况下每日一次 |
流域水污染物综合排放标准第2部分:沂沭河流域(DB37/3416.2—2018) |
3 mg/L |
红外分光光度法 |
分光光度计 |
手工监测 |
|
氨氮(NH3-N) |
YS001 |
1#雨水排放口 |
有流量的情况下每日一次 |
流域水污染物综合排放标准第2部分:沂沭河流域(DB37/3416.2—2018) |
5 mg/L |
纳氏试剂分光光度法 |
分光光度计 |
手工监测 |
|
PH |
YS002 |
2#雨水排放口 |
有流量的情况下每日一次 |
流域水污染物综合排放标准第2部分:沂沭河流域(DB37/3416.2—2018) |
6~9 |
玻璃电极法 |
PH计 |
手工监测 |
|
悬浮物 |
YS002 |
2#雨水排放口 |
有流量的情况下每日一次 |
流域水污染物综合排放标准第2部分:沂沭河流域(DB37/3416.2—2018) |
20 mg/L |
重量法 |
电子天平 |
手工监测 |
|
化学需氧量 |
YS002 |
2#雨水排放口 |
有流量的情况下每日一次 |
流域水污染物综合排放标准第2部分:沂沭河流域(DB37/3416.2—2018) |
40 mg/L |
重铬酸盐法 |
消解仪 |
手工监测 |
|
石油类 |
YS002 |
2#雨水排放口 |
有流量的情况下每日一次 |
流域水污染物综合排放标准第2部分:沂沭河流域(DB37/3416.2—2018) |
3 mg/L |
红外分光光度法 |
分光光度计 |
手工监测 |
|
氨氮(NH3-N) |
YS002 |
2#雨水排放口 |
有流量的情况下每日一次 |
流域水污染物综合排放标准第2部分:沂沭河流域(DB37/3416.2—2018) |
5 mg/L |
纳氏试剂分光光度法 |
分光光度计 |
手工监测 |
|
PH |
YS003 |
3#雨水排放口 |
有流量的情况下每日一次 |
流域水污染物综合排放标准第2部分:沂沭河流域(DB37/3416.2—2018) |
6~9 |
玻璃电极法 |
PH计 |
手工监测 |
|
悬浮物 |
YS003 |
3#雨水排放口 |
有流量的情况下每日一次 |
流域水污染物综合排放标准第2部分:沂沭河流域(DB37/3416.2—2018) |
20 mg/L |
重量法 |
电子天平 |
手工监测 |
|
化学需氧量 |
YS003 |
3#雨水排放口 |
有流量的情况下每日一次 |
流域水污染物综合排放标准第2部分:沂沭河流域(DB37/3416.2—2018) |
40 mg/L |
重铬酸盐法 |
消解仪 |
手工监测 |
|
石油类 |
YS003 |
3#雨水排放口 |
有流量的情况下每日一次 |
流域水污染物综合排放标准第2部分:沂沭河流域(DB37/3416.2—2018) |
3 mg/L |
红外分光光度法 |
分光光度计 |
手工监测 |
|
氨氮(NH3-N) |
YS003 |
3#雨水排放口 |
有流量的情况下每日一次 |
流域水污染物综合排放标准第2部分:沂沭河流域(DB37/3416.2—2018) |
5 mg/L |
纳氏试剂分光光度法 |
分光光度计 |
手工监测 |
|
PH |
YS004 |
4#雨水排放口 |
有流量的情况下每日一次 |
流域水污染物综合排放标准第2部分:沂沭河流域(DB37/3416.2—2018) |
6~9 |
玻璃电极法 |
PH计 |
手工监测 |
|
悬浮物 |
YS004 |
4#雨水排放口 |
有流量的情况下每日一次 |
流域水污染物综合排放标准第2部分:沂沭河流域(DB37/3416.2—2018) |
20 mg/L |
重量法 |
电子天平 |
手工监测 |
|
化学需氧量 |
YS004 |
4#雨水排放口 |
有流量的情况下每日一次 |
流域水污染物综合排放标准第2部分:沂沭河流域(DB37/3416.2—2018) |
40 mg/L |
重铬酸盐法 |
消解仪 |
手工监测 |
|
石油类 |
YS004 |
4#雨水排放口 |
有流量的情况下每日一次 |
流域水污染物综合排放标准第2部分:沂沭河流域(DB37/3416.2—2018) |
3 mg/L |
红外分光光度法 |
分光光度计 |
手工监测 |
|
氨氮(NH3-N) |
YS004 |
4#雨水排放口 |
有流量的情况下每日一次 |
流域水污染物综合排放标准第2部分:沂沭河流域(DB37/3416.2—2018) |
5 mg/L |
纳氏试剂分光光度法 |
分光光度计 |
手工监测 |
|
挥发酚 |
/ |
1#高炉冲渣回用水 |
1 周/次 |
钢铁工业水污染物排放标准(GB13456-2012) |
/ |
4-氨基安替比林分光光度法 |
分光光度计 |
手工监测 |
|
PH |
/ |
1#高炉冲渣补水口 |
1 周/次 |
钢铁工业水污染物排放标准(GB13456-2012) |
/ |
玻璃电极法 |
PH 计 |
手工监测 |
|
悬浮物 |
/ |
1#高炉冲渣补水口 |
1 周/次 |
钢铁工业水污染物排放标准(GB13456-2012) |
/ |
重量法 |
电子天平 |
手工监测 |
|
化学需氧量 |
/ |
1#高炉冲渣补水口 |
1 周/次 |
钢铁工业水污染物排放标准(GB13456-2012) |
/ |
重铬酸盐法 |
消解仪 |
手工监测 |
|
氨氮 |
/ |
1#高炉冲渣补水口 |
1 周/次 |
钢铁工业水污染物排放标准(GB13456-2012) |
/ |
水杨酸比色法 |
氨氮分析仪 |
手工监测 |
|
挥发酚 |
/ |
1#高炉冲渣补水口 |
1 周/次 |
钢铁工业水污染物排放标准(GB13456-2012) |
/ |
4-氨基安替比 |
分光光度计 |
手工监测 |
|
氰化物 |
/ |
1#高炉冲渣补水口 |
1 周/次 |
钢铁工业水污染物排放标准(GB13456-2012) |
/ |
异烟酸吡唑啉酮分光光度法 |
分光光度计 |
手工监测 |
|
挥发酚 |
/ |
2#高炉冲渣回用水 |
1 周/次 |
钢铁工业水污染物排放标准(GB13456-2012) |
/ |
4-氨基安替比林分光光度法 |
分光光度计 |
手工监测 |
|
PH |
/ |
2#高炉冲渣回用水 |
1 周/次 |
钢铁工业水污染物排放标准(GB13456-2012) |
/ |
玻璃电极法 |
PH 计 |
手工监测 |
|
悬浮物 |
/ |
2#高炉冲渣回用水 |
1 周/次 |
钢铁工业水污染物排放标准(GB13456-2012) |
/ |
重量法 |
电子天平 |
手工监测 |
|
化学需氧量 |
/ |
2#高炉冲渣回用水 |
1 周/次 |
钢铁工业水污染物排放标准(GB13456-2012) |
/ |
重铬酸盐法 |
消解仪 |
手工监测 |
|
氨氮 |
/ |
2#高炉冲渣回用水 |
1 周/次 |
钢铁工业水污染物排放标准(GB13456-2012) |
/ |
水杨酸比色法 |
氨氮分析仪 |
手工监测 |
|
挥发酚 |
/ |
2#高炉冲渣回用水 |
1 周/次 |
钢铁工业水污染物排放标准(GB13456-2012) |
/ |
4-氨基安替比 |
分光光度计 |
手工监测 |
|
氰化物 |
/ |
2#高炉冲渣回用水 |
1 周/次 |
钢铁工业水污染物排放标准(GB13456-2012) |
/ |
异烟酸吡唑啉酮分光光度法 |
分光光度计 |
手工监测 |
|
污染物排放方式及排放去向 |
综合污水处理厂处理后不外排 |
|||||||
|
采样和样品保存方法 |
按照《HJ 493-2009 水质 样品的保存和管理技术规定》、《HJ 494-2009 水质 采样技术导则》、《HJ 91.1-2019 污水监测技术规范》及检测参数具体国家或地方检测标准进行样品采样和保存。 |
|||||||
|
监测质量控制措施 |
1、监测人员严格执行环境监测技术规范。 |
|||||||
|
监测结果公开时限 |
依据《国家重点监控企业自行监测及信息公开办法》及《排污单位自行监测技术指南 钢铁工业及炼焦化学工业》的频次进行监测,监测完成后一周内向社会公开信息。 |
|||||||
|
备注 |
|
|||||||
无组织自行监测内容表
|
监测项目 |
监测点位 |
监测频次 |
执行排放标准 |
标准限值 |
监测方法 |
分析仪器 |
备注 |
|
颗粒物 |
公司厂界 |
1次/季度 |
排污许可证 |
1 mg/m3 |
重量法 |
中流量智能TSP 采样器 |
手工监测 |
|
颗粒物 |
烧结车间 |
1次/年 |
排污许可证 |
8 mg/m3 |
重量法 |
中流量智能TSP 采样器 |
手工监测 |
|
颗粒物 |
球团车间 |
1次/年 |
排污许可证 |
8 mg/m3 |
重量法 |
中流量智能TSP 采样器 |
手工监测 |
|
颗粒物 |
炼铁车间 |
1次/年 |
排污许可证 |
8 mg/m3 |
重量法 |
中流量智能TSP 采样器 |
手工监测 |
|
颗粒物 |
炼钢车间 |
1次/年 |
排污许可证 |
8 mg/m3 |
重量法 |
中流量智能TSP 采样器 |
手工监测 |
|
污染物排放方式及排放去向 |
各产尘点配备有效的废气捕集装置 |
||||||
|
采样和样品保存方法 |
严格按《环境空气总悬浮物的测定重量法》(GB/T15432-1995)要求进行。 |
||||||
|
监测质量控制措施 |
1、监测人员严格执行环境监测技术规范。 |
||||||
|
监测结果公开时限 |
依据《国家重点监控企业自行监测及信息公开办法》的要求及《排污单位自行监测技术指南 钢铁工业及炼焦化学工业》的频次进行监测,监测完成后一周内向社会公开信息。 |
||||||
|
备注 |
|
||||||
厂界噪声自行监测内容表
|
监测项目 |
监测点位 |
监测频次 |
执行排放标准 |
标准限值 |
监测方法 |
分析仪器 |
备注 |
|
工业企业厂界环境噪声(夜间) |
东厂界 |
1 季度/次 |
排污许可证 |
55 dB |
噪声分析 |
多功能声级计 |
手工监测 |
|
工业企业厂界环境噪声(昼间) |
东厂界 |
1 季度/次 |
排污许可证 |
65 dB |
噪声分析 |
多功能声级计 |
手工监测 |
|
工业企业厂界环境噪声(夜间) |
西厂界 |
1 季度/次 |
排污许可证 |
55 dB |
噪声分析 |
多功能声级计 |
手工监测 |
|
工业企业厂界环境噪声(昼间) |
西厂界 |
1 季度/次 |
排污许可证 |
65 dB |
噪声分析 |
多功能声级计 |
手工监测 |
|
工业企业厂界环境噪声(夜间) |
南厂界 |
1 季度/次 |
排污许可证 |
55 dB |
噪声分析 |
多功能声级计 |
手工监测 |
|
工业企业厂界环境噪声(昼间) |
南厂界 |
1 季度/次 |
排污许可证 |
65 dB |
噪声分析 |
多功能声级计 |
手工监测 |
|
工业企业厂界环境噪声(夜间) |
北厂界 |
1 季度/次 |
排污许可证 |
55 dB |
噪声分析 |
多功能声级计 |
手工监测 |
|
工业企业厂界环境噪声(昼间) |
北厂界 |
1 季度/次 |
排污许可证 |
65 dB |
噪声分析 |
多功能声级计 |
手工监测 |
|
污染物排放方式及排放去向 |
经噪音治理设施处理 |
||||||
|
采样和样品保存方法 |
严格按照《工业企业厂界环境噪声排放标准》(GB12348-2008)、《声环境质量标准》(GB3096-2008)要求进行。 |
||||||
|
监测质量控制措施 |
1.机构:承担监测任务的检测机构通过省级计量认证或国家实验室资质认定。 |
||||||
|
监测结果公开时限 |
依据《国家重点监控企业自行监测及信息公开办法》的要求及《排污单位自行监测技术指南 钢铁工业及炼焦化学工业》的频次进行监测,监测完成后一周内向社会公开信息。 |
||||||
|
备注 |
|
||||||
地下水自行监测内容表
|
监测项目 |
监测点位 |
监测频次 |
执行排放标准 |
标准限值 |
监测方法 |
分析仪器 |
备注 |
|
PH |
2#地下水环境监测井-北厂界,1#地下水环境监测井-轧钢南,3#地下水环境监测井-高炉东南,4#地下水环境监测井-水渣场南 |
1次/半年 (分枯水期与丰水期) |
地下水质量标准(GB_T14848-2017) |
6.5≤PH≤8.5 |
电极法 |
便携式多参数分析仪 |
手工监测 |
|
电导率 |
2#地下水环境监测井-北厂界,1#地下水环境监测井-轧钢南,3#地下水环境监测井-高炉东南,4#地下水环境监测井-水渣场南 |
1次/半年 (分枯水期与丰水期) |
地下水质量标准(GB_T14848-2017) |
/ |
电极法 |
电导率仪 |
手工监测 |
|
浑浊度 |
2#地下水环境监测井-北厂界,1#地下水环境监测井-轧钢南,3#地下水环境监测井-高炉东南,4#地下水环境监测井-水渣场南 |
1次/半年 (分枯水期与丰水期) |
地下水质量标准(GB_T14848-2017) |
≤3 |
浊度计法 |
便携式多参数分析仪 |
手工监测 |
|
溶解氧 |
2#地下水环境监测井-北厂界,1#地下水环境监测井-轧钢南,3#地下水环境监测井-高炉东南,4#地下水环境监测井-水渣场南 |
1次/半年 (分枯水期与丰水期) |
地下水质量标准(GB_T14848-2017) |
/ |
电化学探头法 |
溶解氧测量仪 |
手工监测 |
|
色度 |
2#地下水环境监测井-北厂界,1#地下水环境监测井-轧钢南,3#地下水环境监测井-高炉东南,4#地下水环境监测井-水渣场南 |
1次/半年 (分枯水期与丰水期) |
地下水质量标准(GB_T14848-2017) |
≤15 |
铂钴比色法 |
便携式多参数分析仪 |
手工监测 |
|
氧化还原电位 |
2#地下水环境监测井-北厂界,1#地下水环境监测井-轧钢南,3#地下水环境监测井-高炉东南,4#地下水环境监测井-水渣场南 |
1次/半年 (分枯水期与丰水期) |
地下水质量标准(GB_T14848-2017) |
/ |
电极反应 |
复合电极 |
手工监测 |
|
目视可见物 |
2#地下水环境监测井-北厂界,1#地下水环境监测井-轧钢南,3#地下水环境监测井-高炉东南,4#地下水环境监测井-水渣场南 |
1次/半年 (分枯水期与丰水期) |
地下水质量标准(GB_T14848-2017) |
无 |
直接观察法 |
/ |
手工监测 |
|
嗅和味 |
2#地下水环境监测井-北厂界,1#地下水环境监测井-轧钢南,3#地下水环境监测井-高炉东南,4#地下水环境监测井-水渣场南 |
1次/半年 (分枯水期与丰水期) |
地下水质量标准(GB_T14848-2017) |
无 |
嗅气和尝味法 |
/ |
手工监测 |
|
总硬度 |
2#地下水环境监测井-北厂界,1#地下水环境监测井-轧钢南,3#地下水环境监测井-高炉东南,4#地下水环境监测井-水渣场南 |
1次/半年 (分枯水期与丰水期) |
地下水质量标准(GB_T14848-2017) |
≤450 |
EDTA滴定法 |
酸式滴定管 |
手工监测 |
|
碳酸盐 |
2#地下水环境监测井-北厂界,1#地下水环境监测井-轧钢南,3#地下水环境监测井-高炉东南,4#地下水环境监测井-水渣场南 |
1次/半年 (分枯水期与丰水期) |
地下水质量标准(GB_T14848-2017) |
/ |
滴定法 |
滴定管 |
手工监测 |
|
重碳酸盐 |
2#地下水环境监测井-北厂界,1#地下水环境监测井-轧钢南,3#地下水环境监测井-高炉东南,4#地下水环境监测井-水渣场南 |
1次/半年 (分枯水期与丰水期) |
地下水质量标准(GB_T14848-2017) |
/ |
滴定法 |
滴定管 |
手工监测 |
|
硫酸盐 |
2#地下水环境监测井-北厂界,1#地下水环境监测井-轧钢南,3#地下水环境监测井-高炉东南,4#地下水环境监测井-水渣场南 |
1次/半年 (分枯水期与丰水期) |
地下水质量标准(GB_T14848-2017) |
≤250 |
离子色谱法 |
离子色谱仪 |
手工监测 |
|
硝酸盐 |
2#地下水环境监测井-北厂界,1#地下水环境监测井-轧钢南,3#地下水环境监测井-高炉东南,4#地下水环境监测井-水渣场南 |
1次/半年 (分枯水期与丰水期) |
地下水质量标准(GB_T14848-2017) |
≤20.0 |
离子色谱法 |
离子色谱仪 |
手工监测 |
|
亚硝酸盐 |
2#地下水环境监测井-北厂界,1#地下水环境监测井-轧钢南,3#地下水环境监测井-高炉东南,4#地下水环境监测井-水渣场南 |
1次/半年 (分枯水期与丰水期) |
地下水质量标准(GB_T14848-2017) |
≤1.00 |
离子色 |
离子色谱仪 |
手工监测 |
|
氟化物 |
2#地下水环境监测井-北厂界,1#地下水环境监测井-轧钢南,3#地下水环境监测井-高炉东南,4#地下水环境监测井-水渣场南 |
1次/半年 (分枯水期与丰水期) |
地下水质量标准(GB_T14848-2017) |
≤1.0 |
离子选择电极法 |
离子色谱仪 |
手工监测 |
|
氯化物 |
2#地下水环境监测井-北厂界,1#地下水环境监测井-轧钢南,3#地下水环境监测井-高炉东南,4#地下水环境监测井-水渣场南 |
1次/半年 (分枯水期与丰水期) |
地下水质量标准(GB_T14848-2017) |
≤250 |
离子色谱法 |
离子色谱仪 |
手工监测 |
|
氰化物 |
2#地下水环境监测井-北厂界,1#地下水环境监测井-轧钢南,3#地下水环境监测井-高炉东南,4#地下水环境监测井-水渣场南 |
1次/半年 (分枯水期与丰水期) |
地下水质量标准(GB_T14848-2017) |
≤0.05 |
异烟酸-吡唑酮分光光度法
|
分光光度计 |
手工监测 |
|
挥发酚 |
2#地下水环境监测井-北厂界,1#地下水环境监测井-轧钢南,3#地下水环境监测井-高炉东南,4#地下水环境监测井-水渣场南 |
1次/半年 (分枯水期与丰水期) |
地下水质量标准(GB_T14848-2017) |
≤0.002 |
光光度法 |
分光光度计 |
手工监测 |
|
氨氮 |
2#地下水环境监测井-北厂界,1#地下水环境监测井-轧钢南,3#地下水环境监测井-高炉东南,4#地下水环境监测井-水渣场南 |
1次/半年 (分枯水期与丰水期) |
地下水质量标准(GB_T14848-2017) |
≤0.50 |
水杨酸分光光度法 |
分光光度计 |
手工监测 |
|
耗氧量 |
2#地下水环境监测井-北厂界,1#地下水环境监测井-轧钢南,3#地下水环境监测井-高炉东南,4#地下水环境监测井-水渣场南 |
1次/半年 (分枯水期与丰水期) |
地下水质量标准(GB_T14848-2017) |
≤3.0 |
电化学探头法 |
便携式多参数分析仪 |
手工监测 |
|
溶解性总固体 |
2#地下水环境监测井-北厂界,1#地下水环境监测井-轧钢南,3#地下水环境监测井-高炉东南,4#地下水环境监测井-水渣场南 |
1次/半年 (分枯水期与丰水期) |
地下水质量标准(GB_T14848-2017) |
≤1000 |
称量法 |
电子天平 |
手工监测 |
|
钾 |
2#地下水环境监测井-北厂界,1#地下水环境监测井-轧钢南,3#地下水环境监测井-高炉东南,4#地下水环境监测井-水渣场南 |
1次/半年 (分枯水期与丰水期) |
地下水质量标准(GB_T14848-2017) |
/ |
离子色谱法 |
离子色谱仪 |
手工监测 |
|
钠 |
2#地下水环境监测井-北厂界,1#地下水环境监测井-轧钢南,3#地下水环境监测井-高炉东南,4#地下水环境监测井-水渣场南 |
1次/半年 (分枯水期与丰水期) |
地下水质量标准(GB_T14848-2017) |
≤200 |
火焰原子吸收分光光度法 |
原子吸收分光光度计 |
手工监测 |
|
钙 |
2#地下水环境监测井-北厂界,1#地下水环境监测井-轧钢南,3#地下水环境监测井-高炉东南,4#地下水环境监测井-水渣场南 |
1次/半年 (分枯水期与丰水期) |
地下水质量标准(GB_T14848-2017) |
/ |
电感耦合等离子体发射光谱法 |
电感耦合等离子体发射光谱仪 |
手工监测 |
|
镁 |
2#地下水环境监测井-北厂界,1#地下水环境监测井-轧钢南,3#地下水环境监测井-高炉东南,4#地下水环境监测井-水渣场南 |
1次/半年 (分枯水期与丰水期) |
地下水质量标准(GB_T14848-2017) |
/ |
电感耦合等离子体发射光谱法 |
电感耦合等离子体发射光谱仪 |
手工监测 |
|
铁 |
2#地下水环境监测井-北厂界,1#地下水环境监测井-轧钢南,3#地下水环境监测井-高炉东南,4#地下水环境监测井-水渣场南 |
1次/半年 (分枯水期与丰水期) |
地下水质量标准(GB_T14848-2017) |
≤0.3 |
电感耦合等离子体质谱法 |
电感耦合等离子体质谱仪 |
手工监测 |
|
锰 |
2#地下水环境监测井-北厂界,1#地下水环境监测井-轧钢南,3#地下水环境监测井-高炉东南,4#地下水环境监测井-水渣场南 |
1次/半年 (分枯水期与丰水期) |
地下水质量标准(GB_T14848-2017) |
≤0.3 |
电感耦合等离子体质谱法 |
电感耦合等离子体质谱仪 |
手工监测 |
|
铜 |
2#地下水环境监测井-北厂界,1#地下水环境监测井-轧钢南,3#地下水环境监测井-高炉东南,4#地下水环境监测井-水渣场南 |
1次/半年 (分枯水期与丰水期) |
地下水质量标准(GB_T14848-2017) |
≤1.00 |
电感耦合等离子体质谱法 |
电感耦合等离子体质谱仪 |
手工监测 |
|
锌 |
2#地下水环境监测井-北厂界,1#地下水环境监测井-轧钢南,3#地下水环境监测井-高炉东南,4#地下水环境监测井-水渣场南 |
1次/半年 (分枯水期与丰水期) |
地下水质量标准(GB_T14848-2017) |
≤1.00 |
电感耦合等离子体质谱法 |
电感耦合等离子体质谱仪 |
手工监测 |
|
镉 |
2#地下水环境监测井-北厂界,1#地下水环境监测井-轧钢南,3#地下水环境监测井-高炉东南,4#地下水环境监测井-水渣场南 |
1次/半年 (分枯水期与丰水期) |
地下水质量标准(GB_T14848-2017) |
≤0.005 |
分光光度法 |
石墨炉原子吸收光谱仪 |
手工监测 |
|
汞 |
2#地下水环境监测井-北厂界,1#地下水环境监测井-轧钢南,3#地下水环境监测井-高炉东南,4#地下水环境监测井-水渣场南 |
1次/半年 (分枯水期与丰水期) |
地下水质量标准(GB_T14848-2017) |
≤0.001 |
原子荧光法 |
原子荧光光度计 |
手工监测 |
|
砷 |
2#地下水环境监测井-北厂界,1#地下水环境监测井-轧钢南,3#地下水环境监测井-高炉东南,4#地下水环境监测井-水渣场南 |
1次/半年 (分枯水期与丰水期) |
地下水质量标准(GB_T14848-2017) |
≤0.01 |
原子荧光法 |
原子荧光光度计 |
手工监测 |
|
六价铬 |
2#地下水环境监测井-北厂界,1#地下水环境监测井-轧钢南,3#地下水环境监测井-高炉东南,4#地下水环境监测井-水渣场南 |
1次/半年 (分枯水期与丰水期) |
地下水质量标准(GB_T14848-2017) |
≤0.05 |
火焰原子吸收分光光度法 |
原子吸收光谱仪 |
手工监测 |
|
铅 |
2#地下水环境监测井-北厂界,1#地下水环境监测井-轧钢南,3#地下水环境监测井-高炉东南,4#地下水环境监测井-水渣场南 |
1次/半年 (分枯水期与丰水期) |
地下水质量标准(GB_T14848-2017) |
≤0.01 |
火焰原子吸收分光光度法 |
火焰原子吸收分光光度计 |
手工监测 |
|
镍 |
2#地下水环境监测井-北厂界,1#地下水环境监测井-轧钢南,3#地下水环境监测井-高炉东南,4#地下水环境监测井-水渣场南 |
1次/半年 (分枯水期与丰水期) |
地下水质量标准(GB_T14848-2017) |
≤0.02 |
火焰原子吸收分光光度法 |
原子吸收分光光度计 |
手工监测 |
|
钴 |
2#地下水环境监测井-北厂界,1#地下水环境监测井-轧钢南,3#地下水环境监测井-高炉东南,4#地下水环境监测井-水渣场南 |
1次/半年 (分枯水期与丰水期) |
地下水质量标准(GB_T14848-2017) |
≤0.05 |
电感耦合等离子体质谱法 |
电感耦合等离子体质谱仪 |
手工监测 |
|
苯 |
2#地下水环境监测井-北厂界,1#地下水环境监测井-轧钢南,3#地下水环境监测井-高炉东南,4#地下水环境监测井-水渣场南 |
1次/半年 (分枯水期与丰水期) |
地下水质量标准(GB_T14848-2017) |
≤10.0 |
吹扫捕集/气相色谱-质谱法 |
气相-质谱联用仪 |
手工监测 |
|
甲苯 |
2#地下水环境监测井-北厂界,1#地下水环境监测井-轧钢南,3#地下水环境监测井-高炉东南,4#地下水环境监测井-水渣场南 |
1次/半年 (分枯水期与丰水期) |
地下水质量标准(GB_T14848-2017) |
≤700 |
吹扫捕集/气相色谱-质谱法 |
气相-质谱联用仪 |
手工监测 |
|
石油类 |
2#地下水环境监测井-北厂界,1#地下水环境监测井-轧钢南,3#地下水环境监测井-高炉东南,4#地下水环境监测井-水渣场南 |
1次/半年 (分枯水期与丰水期) |
地下水质量标准(GB_T14848-2017) |
/ |
紫外分光光度法 |
紫外分光光度计 |
手工监测 |
|
污染物排放方式及排放去向 |
无 |
||||||
|
采样和样品保存方法 |
严格按照地下水质量标准(GB_T14848-2017)、钢铁行业地下水监测技术规范(YB_T4961-2021)要求进行。 |
||||||
|
监测质量控制措施 |
1.机构:承担监测任务的检测机构通过省级计量认证或国家实验室资质认定。 |
||||||
|
监测结果公开时限 |
依据《国家重点监控企业自行监测及信息公开办法》的要求及《排污单位自行监测技术指南 钢铁工业及炼焦化学工业》的频次进行监测,监测完成后一周内向社会公开信息。 |
||||||
|
备注 |
|
||||||
土壤自行监测内容表
|
监测项目 |
监测点位 |
监测频次 |
执行排放标准 |
标准限值 |
监测方法 |
分析仪器 |
备注 |
|
砷 |
原料场、烧结、球团、高炉、炼钢、污水处理站区域 |
1次/年 |
土壤环境质量建设用地土壤污染风险管控标准(试行)(GB36600—2018) |
60 |
原子荧光法 |
原子荧光光度计 |
手工监测 |
|
镉 |
原料场、烧结、球团、高炉、炼钢、污水处理站区域 |
1次/年 |
土壤环境质量建设用地土壤污染风险管控标准(试行)(GB36600—2018) |
65 |
分光光度法 |
石墨炉原子吸收光谱仪 |
手工监测 |
|
六价镉 |
原料场、烧结、球团、高炉、炼钢、污水处理站区域 |
1次/年 |
土壤环境质量建设用地土壤污染风险管控标准(试行)(GB36600—2018) |
5.7 |
原子吸收分光光度法 |
原子吸收分光光度计 |
手工监测 |
|
铜 |
原料场、烧结、球团、高炉、炼钢、污水处理站区域 |
1次/年 |
土壤环境质量建设用地土壤污染风险管控标准(试行)(GB36600—2018) |
18000 |
火焰原子吸收分光光度法 |
原子吸收分光光度计 |
手工监测 |
|
铅 |
原料场、烧结、球团、高炉、炼钢、污水处理站区域 |
1次/年 |
土壤环境质量建设用地土壤污染风险管控标准(试行)(GB36600—2018) |
800 |
原子吸收分光光度法 |
原子吸收分光光度计 |
手工监测 |
|
汞 |
原料场、烧结、球团、高炉、炼钢、污水处理站区域 |
1次/年 |
土壤环境质量建设用地土壤污染风险管控标准(试行)(GB36600—2018) |
38 |
原子荧光法 |
原子荧光光度计 |
手工监测 |
|
镍 |
原料场、烧结、球团、高炉、炼钢、污水处理站区域 |
1次/年 |
土壤环境质量建设用地土壤污染风险管控标准(试行)(GB36600—2018) |
900 |
原子吸收分光光度法 |
原子吸收分光光度计 |
手工监测 |
|
四氯化碳 |
原料场、烧结、球团、高炉、炼钢、污水处理站区域 |
1次/年 |
土壤环境质量建设用地土壤污染风险管控标准(试行)(GB36600—2018) |
2.8 |
质谱法 |
气象色谱仪 |
手工监测 |
|
氯仿 |
原料场、烧结、球团、高炉、炼钢、污水处理站区域 |
1次/年 |
土壤环境质量建设用地土壤污染风险管控标准(试行)(GB36600—2018) |
0.9 |
质谱法 |
气象色谱仪 |
手工监测 |
|
氯甲烷 |
原料场、烧结、球团、高炉、炼钢、污水处理站区域 |
1次/年 |
土壤环境质量建设用地土壤污染风险管控标准(试行)(GB36600—2018) |
37 |
质谱法 |
气象色谱仪 |
手工监测 |
|
1,1-二氯乙烷 |
原料场、烧结、球团、高炉、炼钢、污水处理站区域 |
1次/年 |
土壤环境质量建设用地土壤污染风险管控标准(试行)(GB36600—2018) |
9 |
质谱法 |
气象色谱仪 |
手工监测 |
|
1,2-二氯乙烷 |
原料场、烧结、球团、高炉、炼钢、污水处理站区域 |
1次/年 |
土壤环境质量建设用地土壤污染风险管控标准(试行)(GB36600—2018) |
5 |
质谱法 |
气象色谱仪 |
手工监测 |
|
1,1-二氯乙烯 |
原料场、烧结、球团、高炉、炼钢、污水处理站区域 |
1次/年 |
土壤环境质量建设用地土壤污染风险管控标准(试行)(GB36600—2018) |
66 |
质谱法 |
气象色谱仪 |
手工监测 |
|
顺-1,2-二氯乙烯 |
原料场、烧结、球团、高炉、炼钢、污水处理站区域 |
1次/年 |
土壤环境质量建设用地土壤污染风险管控标准(试行)(GB36600—2018) |
596 |
质谱法 |
气象色谱仪 |
手工监测 |
|
反-1,2-二氯乙烯 |
原料场、烧结、球团、高炉、炼钢、污水处理站区域 |
1次/年 |
土壤环境质量建设用地土壤污染风险管控标准(试行)(GB36600—2018) |
54 |
质谱法 |
气象色谱仪 |
手工监测 |
|
二氯甲烷 |
原料场、烧结、球团、高炉、炼钢、污水处理站区域 |
1次/年 |
土壤环境质量建设用地土壤污染风险管控标准(试行)(GB36600—2018) |
616 |
质谱法 |
气象色谱仪 |
手工监测 |
|
1,2-二氯丙烷 |
原料场、烧结、球团、高炉、炼钢、污水处理站区域 |
1次/年 |
土壤环境质量建设用地土壤污染风险管控标准(试行)(GB36600—2018) |
5 |
质谱法 |
气象色谱仪 |
手工监测 |
|
1,1,1,2-四氯乙烷 |
原料场、烧结、球团、高炉、炼钢、污水处理站区域 |
1次/年 |
土壤环境质量建设用地土壤污染风险管控标准(试行)(GB36600—2018) |
10 |
质谱法 |
气象色谱仪 |
手工监测 |
|
1,1,2,2-四氯乙烷 |
原料场、烧结、球团、高炉、炼钢、污水处理站区域 |
1次/年 |
土壤环境质量建设用地土壤污染风险管控标准(试行)(GB36600—2018) |
6.8 |
质谱法 |
气象色谱仪 |
手工监测 |
|
四氯乙烯 |
原料场、烧结、球团、高炉、炼钢、污水处理站区域 |
1次/年 |
土壤环境质量建设用地土壤污染风险管控标准(试行)(GB36600—2018) |
53 |
质谱法 |
气象色谱仪 |
手工监测 |
|
1,1,1-三氯乙烷 |
原料场、烧结、球团、高炉、炼钢、污水处理站区域 |
1次/年 |
土壤环境质量建设用地土壤污染风险管控标准(试行)(GB36600—2018) |
840 |
质谱法 |
气象色谱仪 |
手工监测 |
|
1,1,2-三氯乙烷 |
原料场、烧结、球团、高炉、炼钢、污水处理站区域 |
1次/年 |
土壤环境质量建设用地土壤污染风险管控标准(试行)(GB36600—2018) |
2.8 |
质谱法 |
气象色谱仪 |
手工监测 |
|
三氯乙烯 |
原料场、烧结、球团、高炉、炼钢、污水处理站区域 |
1次/年 |
土壤环境质量建设用地土壤污染风险管控标准(试行)(GB36600—2018) |
2.8 |
质谱法 |
气象色谱仪 |
手工监测 |
|
1,2,3-三氯丙烷 |
原料场、烧结、球团、高炉、炼钢、污水处理站区域 |
1次/年 |
土壤环境质量建设用地土壤污染风险管控标准(试行)(GB36600—2018) |
0.5 |
质谱法 |
气象色谱仪 |
手工监测 |
|
氯乙烯 |
原料场、烧结、球团、高炉、炼钢、污水处理站区域 |
1次/年 |
土壤环境质量建设用地土壤污染风险管控标准(试行)(GB36600—2018) |
0.43 |
质谱法 |
气象色谱仪 |
手工监测 |
|
苯 |
原料场、烧结、球团、高炉、炼钢、污水处理站区域 |
1次/年 |
土壤环境质量建设用地土壤污染风险管控标准(试行)(GB36600—2018) |
4 |
质谱法 |
气象色谱仪 |
手工监测 |
|
氯苯 |
原料场、烧结、球团、高炉、炼钢、污水处理站区域 |
1次/年 |
土壤环境质量建设用地土壤污染风险管控标准(试行)(GB36600—2018) |
270 |
质谱法 |
气象色谱仪 |
手工监测 |
|
1,2-二氯苯 |
原料场、烧结、球团、高炉、炼钢、污水处理站区域 |
1次/年 |
土壤环境质量建设用地土壤污染风险管控标准(试行)(GB36600—2018) |
560 |
质谱法 |
气象色谱仪 |
手工监测 |
|
1,4-二氯苯 |
原料场、烧结、球团、高炉、炼钢、污水处理站区域 |
1次/年 |
土壤环境质量建设用地土壤污染风险管控标准(试行)(GB36600—2018) |
20 |
质谱法 |
气象色谱仪 |
手工监测 |
|
乙苯 |
原料场、烧结、球团、高炉、炼钢、污水处理站区域 |
1次/年 |
土壤环境质量建设用地土壤污染风险管控标准(试行)(GB36600—2018) |
28 |
质谱法 |
气象色谱仪 |
手工监测 |
|
苯乙烯 |
原料场、烧结、球团、高炉、炼钢、污水处理站区域 |
1次/年 |
土壤环境质量建设用地土壤污染风险管控标准(试行)(GB36600—2018) |
1290 |
质谱法 |
气象色谱仪 |
手工监测 |
|
甲苯 |
原料场、烧结、球团、高炉、炼钢、污水处理站区域 |
1次/年 |
土壤环境质量建设用地土壤污染风险管控标准(试行)(GB36600—2018) |
1200 |
质谱法 |
气象色谱仪 |
手工监测 |
|
间二甲苯+对二甲苯 |
原料场、烧结、球团、高炉、炼钢、污水处理站区域 |
1次/年 |
土壤环境质量建设用地土壤污染风险管控标准(试行)(GB36600—2018) |
570 |
质谱法 |
气象色谱仪 |
手工监测 |
|
邻二甲苯 |
原料场、烧结、球团、高炉、炼钢、污水处理站区域 |
1次/年 |
土壤环境质量建设用地土壤污染风险管控标准(试行)(GB36600—2018) |
640 |
质谱法 |
气象色谱仪 |
手工监测 |
|
硝基苯 |
原料场、烧结、球团、高炉、炼钢、污水处理站区域 |
1次/年 |
土壤环境质量建设用地土壤污染风险管控标准(试行)(GB36600—2018) |
76 |
质谱法 |
气象色谱仪 |
手工监测 |
|
苯胺 |
原料场、烧结、球团、高炉、炼钢、污水处理站区域 |
1次/年 |
土壤环境质量建设用地土壤污染风险管控标准(试行)(GB36600—2018) |
260 |
质谱法 |
气象色谱仪 |
手工监测 |
|
2-氯酚 |
原料场、烧结、球团、高炉、炼钢、污水处理站区域 |
1次/年 |
土壤环境质量建设用地土壤污染风险管控标准(试行)(GB36600—2018) |
2256 |
质谱法 |
气象色谱仪 |
手工监测 |
|
苯并[a]蒽 |
原料场、烧结、球团、高炉、炼钢、污水处理站区域 |
1次/年 |
土壤环境质量建设用地土壤污染风险管控标准(试行)(GB36600—2018) |
15 |
质谱法 |
气象色谱仪 |
手工监测 |
|
苯并[a]芘 |
原料场、烧结、球团、高炉、炼钢、污水处理站区域 |
1次/年 |
土壤环境质量建设用地土壤污染风险管控标准(试行)(GB36600—2018) |
1.5 |
质谱法 |
气象色谱仪 |
手工监测 |
|
苯并[b]荧蒽 |
原料场、烧结、球团、高炉、炼钢、污水处理站区域 |
1次/年 |
土壤环境质量建设用地土壤污染风险管控标准(试行)(GB36600—2018) |
15 |
质谱法 |
气象色谱仪 |
手工监测 |
|
苯并[k]荧蒽 |
原料场、烧结、球团、高炉、炼钢、污水处理站区域 |
1次/年 |
土壤环境质量建设用地土壤污染风险管控标准(试行)(GB36600—2018) |
151 |
质谱法 |
气象色谱仪 |
手工监测 |
|
䓛 |
原料场、烧结、球团、高炉、炼钢、污水处理站区域 |
1次/年 |
土壤环境质量建设用地土壤污染风险管控标准(试行)(GB36600—2018) |
1293 |
质谱法 |
气象色谱仪 |
手工监测 |
|
二苯并[a, h]蒽 |
原料场、烧结、球团、高炉、炼钢、污水处理站区域 |
1次/年 |
土壤环境质量建设用地土壤污染风险管控标准(试行)(GB36600—2018) |
1.5 |
质谱法 |
气象色谱仪 |
手工监测 |
|
茚并 [1,2,3-cd]芘 |
原料场、烧结、球团、高炉、炼钢、污水处理站区域 |
1次/年 |
土壤环境质量建设用地土壤污染风险管控标准(试行)(GB36600—2018) |
15 |
质谱法 |
气象色谱仪 |
手工监测 |
|
萘 |
原料场、烧结、球团、高炉、炼钢、污水处理站区域 |
1次/年 |
土壤环境质量建设用地土壤污染风险管控标准(试行)(GB36600—2018) |
70 |
质谱法 |
气象色谱仪 |
手工监测 |
|
二噁英 |
原料场、烧结、球团、高炉、炼钢、污水处理站区域 |
1次/年 |
土壤环境质量建设用地土壤污染风险管控标准(试行)(GB36600—2018) |
4×10-5 |
质谱法 |
气象色谱仪 |
手工监测 |
|
污染物排放方式及排放去向 |
无 |
||||||
|
采样和样品保存方法 |
严格按照土壤环境质量建设用地土壤污染风险管控标准(试行)(GB36600—2018)要求进行。 |
||||||
|
监测质量控制措施 |
1.机构:承担监测任务的检测机构通过省级计量认证或国家实验室资质认定。 |
||||||
|
监测结果公开时限 |
依据《国家重点监控企业自行监测及信息公开办法》的要求及《排污单位自行监测技术指南 钢铁工业及炼焦化学工业》的频次进行监测,监测完成后一周内向社会公开信息。 |
||||||
|
备注 |
|
||||||
三、监测结果
22年有组织废气污染物监测结果表
|
序号 |
排放口编号 |
排放口名称 |
监测日期 |
出口 |
||||||||||||||
|
标干烟气量(Nm3/h) |
氧含量(%) |
二氧化硫(mg/m3) |
颗粒物(mg/m3) |
氮氧化物(mg/m3) |
氟化物(mg/m3) |
铅及其化合物(mg/m3) |
氨(mg/m3) |
烟气黑度 |
… |
|||||||||
|
监测结果 |
折标值 |
监测结果 |
折标值 |
监测结果 |
折标值 |
监测结果 |
折标值 |
监测结果 |
折标值 |
监测结果 |
监测结果 |
|||||||
|
1 |
DA001 |
原料1#除尘 |
2022.9.1 |
545855 |
/ |
/ |
/ |
1.2 |
/ |
/ |
/ |
/ |
/ |
/ |
/ |
/ |
/ |
|
|
2 |
DA002 |
原料2#除尘 |
2022.9.1 |
273243 |
/ |
/ |
/ |
3.0 |
/ |
/ |
/ |
/ |
/ |
/ |
/ |
/ |
/ |
|
|
3 |
DA003 |
原料3#除尘 |
2022.9.1 |
192649 |
/ |
/ |
/ |
1.5 |
/ |
/ |
/ |
/ |
/ |
/ |
/ |
/ |
/ |
|
|
4 |
DA004 |
原料4#除尘 |
2022.9.1 |
480608 |
/ |
/ |
/ |
2.2 |
/ |
/ |
/ |
/ |
/ |
/ |
/ |
/ |
/ |
|
|
5 |
DA005 |
原料5#除尘 |
2022.9.1 |
200081 |
/ |
/ |
/ |
2.4 |
/ |
/ |
/ |
/ |
/ |
/ |
/ |
/ |
/ |
|
|
6 |
DA006 |
原料6#除尘 |
2022.9.1 |
411046 |
/ |
/ |
/ |
1.7 |
/ |
/ |
/ |
/ |
/ |
/ |
/ |
/ |
/ |
|
|
7 |
DA007 |
原料7#除尘 |
2022.9.1 |
51980 |
/ |
/ |
/ |
6.3 |
/ |
/ |
/ |
/ |
/ |
/ |
/ |
/ |
/ |
|
|
8 |
DA008 |
原料8#除尘 |
2022.9.1 |
410849 |
/ |
/ |
/ |
2.0 |
/ |
/ |
/ |
/ |
/ |
/ |
/ |
/ |
/ |
|
|
9 |
DA058 |
原料9#除尘 |
2022.9.1 |
29411 |
/ |
/ |
/ |
1.6 |
/ |
/ |
/ |
/ |
/ |
/ |
/ |
/ |
/ |
|
|
10 |
DA059 |
原料10#除尘 |
2022.9.1 |
25020 |
/ |
/ |
/ |
1.7 |
/ |
/ |
/ |
/ |
/ |
/ |
/ |
/ |
/ |
|
|
11 |
DA060 |
原料11#除尘 |
2022.9.1 |
17943 |
/ |
/ |
/ |
1.8 |
/ |
/ |
/ |
/ |
/ |
/ |
/ |
/ |
/ |
|
|
12 |
DA069 |
原料12#除尘 |
2022.9.1 |
515417 |
/ |
/ |
/ |
2.4 |
/ |
/ |
/ |
/ |
/ |
/ |
/ |
/ |
/ |
|
|
13 |
DA061 |
活性炭1#除尘 |
2022.9.2 |
50347 |
/ |
/ |
/ |
3.4 |
/ |
/ |
/ |
/ |
/ |
/ |
/ |
/ |
/ |
|
|
14 |
DA062 |
活性炭2#除尘 |
2022.9.2 |
25692 |
/ |
/ |
/ |
1.9 |
/ |
/ |
/ |
/ |
/ |
/ |
/ |
/ |
/ |
|
|
15 |
DA031 |
转炉上料除尘 |
2022.9.2 |
386306 |
/ |
/ |
/ |
2.4 |
/ |
/ |
/ |
/ |
/ |
/ |
/ |
/ |
/ |
|
|
16 |
DA041 |
连铸大包除尘 |
2022.9.2 |
454709 |
/ |
/ |
/ |
2.1 |
/ |
/ |
/ |
/ |
/ |
/ |
/ |
/ |
/ |
|
|
17 |
DA011 |
烧结配料除尘 |
2022.9.2 |
290801 |
/ |
/ |
/ |
1.2 |
/ |
/ |
/ |
/ |
/ |
/ |
/ |
/ |
/ |
|
|
18 |
DA013 |
烧结筛分除尘 |
2022.9.2 |
171644 |
/ |
/ |
/ |
3.0 |
/ |
/ |
/ |
/ |
/ |
/ |
/ |
/ |
/ |
|
|
19 |
DA030 |
转炉三次除尘 |
2022.9.2 |
1011613 |
/ |
/ |
/ |
2.0 |
/ |
/ |
/ |
/ |
/ |
/ |
/ |
/ |
/ |
|
|
20 |
DA037 |
矿渣粉磨除尘 |
2022.9.2 |
262951 |
18.2 |
2L |
/ |
2.2 |
/ |
2L |
/ |
/ |
/ |
/ |
/ |
/ |
/ |
|
|
21 |
DA012 |
烧结燃破除尘 |
2022.9.5 |
95917 |
/ |
/ |
/ |
3.3 |
/ |
/ |
/ |
/ |
/ |
/ |
/ |
/ |
/ |
|
|
22 |
DA014 |
烧结一混除尘 |
2022.9.5 |
19581 |
/ |
/ |
/ |
2.6 |
/ |
/ |
/ |
/ |
/ |
/ |
/ |
/ |
/ |
|
|
23 |
DA015 |
烧结二混除尘 |
2022.9.5 |
22474 |
/ |
/ |
/ |
3.5 |
/ |
/ |
/ |
/ |
/ |
/ |
/ |
/ |
/ |
|
|
24 |
DA021 |
1#喷煤收尘器 |
2022.9.5 |
121850 |
/ |
/ |
/ |
3.6 |
/ |
/ |
/ |
/ |
/ |
/ |
/ |
/ |
/ |
|
|
25 |
DA024 |
2#喷煤收尘器 |
2022.9.5 |
119816 |
/ |
/ |
/ |
3.1 |
/ |
/ |
/ |
/ |
/ |
/ |
/ |
/ |
/ |
|
|
26 |
DA035 |
原料块矿烘干除尘器 |
2022.9.5 |
118235 |
19.0 |
2L |
/ |
2.7 |
/ |
2L |
/ |
/ |
/ |
/ |
/ |
/ |
/ |
|
|
27 |
DA042 |
1#加热炉空烟 |
2022.9.5 |
36012 |
1.9 |
54 |
37 |
5.2 |
3.6 |
123 |
84 |
/ |
/ |
/ |
/ |
/ |
/ |
|
|
28 |
DA043 |
1#加热炉煤烟 |
2022.9.5 |
47370 |
1.8 |
57 |
38 |
5.2 |
3.5 |
115 |
78 |
/ |
/ |
/ |
/ |
/ |
/ |
|
|
29 |
DA044 |
2#加热炉空烟 |
2022.9.6 |
73206 |
3.9 |
36 |
27 |
2.8 |
2.1 |
34 |
26 |
/ |
/ |
/ |
/ |
/ |
/ |
|
|
30 |
DA045 |
2#加热炉煤烟 |
2022.9.6 |
78492 |
3.5 |
35 |
26 |
3.1 |
2.3 |
27 |
20 |
/ |
/ |
/ |
/ |
/ |
/ |
|
|
31 |
DA046 |
3#加热炉空烟 |
2022.9.5 |
32815 |
4.5 |
41 |
29 |
2.4 |
1.9 |
131 |
93 |
/ |
/ |
/ |
/ |
/ |
/ |
|
|
32 |
DA047 |
3#加热炉煤烟 |
2022.9.5 |
34204 |
3.9 |
43 |
31 |
1.6 |
1.2 |
112 |
81 |
/ |
/ |
/ |
/ |
/ |
/ |
|
|
33 |
DA048 |
4#加热炉空烟 |
2022.9.2 |
15302 |
5.4 |
31 |
26 |
2.1 |
1.8 |
75 |
63 |
/ |
/ |
/ |
/ |
/ |
/ |
|
|
34 |
DA049 |
4#加热炉煤烟 |
2022.9.2 |
28695 |
1.4 |
39 |
26 |
2.0 |
1.3 |
60 |
40 |
/ |
/ |
/ |
/ |
/ |
/ |
|
|
35 |
DA038 |
1#钢渣湿电除尘 |
2022.9.6 |
277030 |
/ |
/ |
/ |
3.7 |
/ |
/ |
/ |
/ |
/ |
/ |
/ |
/ |
/ |
|
|
36 |
DA027 |
2#钢渣湿电除尘 |
2022.9.6 |
277108 |
/ |
/ |
/ |
3.0 |
/ |
/ |
/ |
/ |
/ |
/ |
/ |
/ |
/ |
|
|
37 |
DA039 |
钢渣二次处理除尘 |
2022.9.6 |
205471 |
/ |
/ |
/ |
2.6 |
/ |
/ |
/ |
/ |
/ |
/ |
/ |
/ |
/ |
|
|
38 |
DA050 |
石灰窑受料槽除尘 |
2022.9.6 |
63640 |
/ |
/ |
/ |
3.8 |
/ |
/ |
/ |
/ |
/ |
/ |
/ |
/ |
/ |
|
|
39 |
DA052 |
石灰窑原料除尘 |
2022.9.6 |
150815 |
/ |
/ |
/ |
3.6 |
/ |
/ |
/ |
/ |
/ |
/ |
/ |
/ |
/ |
|
|
40 |
DA053 |
石灰窑成品除尘 |
2022.9.6 |
344577 |
/ |
/ |
/ |
3.2 |
/ |
/ |
/ |
/ |
/ |
/ |
/ |
/ |
/ |
|
|
41 |
DA060 |
微粉仓顶1#除尘 |
2022.9.8 |
3828 |
/ |
/ |
/ |
3.4 |
/ |
/ |
/ |
/ |
/ |
/ |
/ |
/ |
/ |
|
|
42 |
DA061 |
微粉仓顶2#除尘 |
2022.9.8 |
3186 |
/ |
/ |
/ |
3.2 |
/ |
/ |
/ |
/ |
/ |
/ |
/ |
/ |
/ |
|
|
43 |
DA062 |
微粉仓顶3#除尘 |
2022.9.8 |
3408 |
/ |
/ |
/ |
3.6 |
/ |
/ |
/ |
/ |
/ |
/ |
/ |
/ |
/ |
|
|
44 |
DA063 |
微粉仓顶4#除尘 |
2022.9.8 |
3240 |
/ |
/ |
/ |
2.4 |
/ |
/ |
/ |
/ |
/ |
/ |
/ |
/ |
/ |
|
|
45 |
DA064 |
微粉仓底除尘 |
2022.9.8 |
7691 |
/ |
/ |
/ |
3.3 |
/ |
/ |
/ |
/ |
/ |
/ |
/ |
/ |
/ |
|
|
46 |
DA040 |
除尘灰处理窑头及上料除尘 |
2022.9.8 |
137133 |
/ |
/ |
/ |
3.8 |
/ |
/ |
/ |
/ |
/ |
/ |
/ |
/ |
/ |
|
|
47 |
DA034 |
煤气发电锅炉脱硫 |
2022.9.16 |
/ |
/ |
/ |
/ |
/ |
/ |
/ |
/ |
/ |
/ |
/ |
/ |
/ |
<1级 |
|
|
48 |
DA009 |
烧结球团脱硫脱硝 |
2022.9.20 |
1517015 |
15.2 |
/ |
/ |
/ |
/ |
/ |
/ |
0.36 |
0.31 |
0.0007 |
0.0006 |
1.99 |
/ |
|
|
49 |
DA016 |
球团烘干机除尘 |
2022.9.20 |
75312 |
/ |
/ |
/ |
3.0 |
/ |
/ |
/ |
/ |
/ |
/ |
/ |
/ |
/ |
|
|
50 |
DA017 |
球团干燥一段除尘 |
2022.9.20 |
266703 |
/ |
/ |
/ |
2.6 |
/ |
/ |
/ |
/ |
/ |
/ |
/ |
/ |
/ |
|
|
51 |
DA018 |
球团环境除尘 |
2022.9.20 |
712687 |
/ |
/ |
/ |
2.6 |
/ |
/ |
/ |
/ |
/ |
/ |
/ |
/ |
/ |
|
|
52 |
DA059 |
钢渣卸车间除尘 |
2022.9.28 |
112493 |
/ |
/ |
/ |
2.3 |
/ |
/ |
/ |
/ |
/ |
/ |
/ |
/ |
/ |
|
22年无组织废气污染物监测结果表
|
序号 |
生产设施编号/ |
监测日期 |
颗粒物(mg/m3) |
氨(mg/m3) |
非甲烷总烃(mg/m3) |
二氧化硫(mg/m3) |
氮氧化物(mg/m3) |
H₂S(mg/m3) |
铅及其化合物(μg/m3) |
|
1 |
烧结脱硫脱硝氨水罐 |
2022.9.3 |
/ |
0.08 |
/ |
/ |
/ |
/ |
/ |
|
2 |
公司厂界 |
2022.9.7 |
0.338 |
/ |
1.52 |
/ |
/ |
/ |
/ |
|
3 |
烧结生产车间 |
2022.9.3 |
0.359 |
/ |
/ |
/ |
/ |
/ |
/ |
|
4 |
球团生产车间 |
2022.9.16 |
0.348 |
/ |
/ |
/ |
/ |
/ |
/ |
|
5 |
高炉生产车间 |
2022.9.3 |
0.344 |
/ |
/ |
/ |
/ |
/ |
/ |
|
6 |
转炉生产车间 |
2022.9.3 |
0.364 |
/ |
/ |
/ |
/ |
/ |
/ |
|
7 |
轧钢一车间 |
2022.9.2 |
0.305 |
/ |
/ |
/ |
/ |
/ |
/ |
|
8 |
轧钢二车间 |
2022.9.2 |
0.331 |
/ |
/ |
/ |
/ |
/ |
/ |
|
9 |
朝阳社区 |
2022.9.7-2022.9.8 |
/ |
/ |
/ |
0.011 |
0.019 |
0.001 |
0.0695 |
|
10 |
于家龙头村 |
2022.9.7-2022.9.8 |
/ |
/ |
/ |
0.014 |
0.015 |
0.001 |
0.0868 |
22年9月废水污染物监测结果表
|
序号 |
排放口编号 |
排放口名称 |
监测日期 |
出口 |
||||||||||||||
|
PH(无量纲) |
悬浮物(mg/L) |
化学需氧量(mg/L) |
氨氮(mg/L) |
挥发酚(mg/L) |
氰化物(mg/L) |
流量(m3/h) |
石油类(mg/L) |
总铅(mg/L) |
总砷(mg/L) |
六价铬(mg/L) |
总镉(mg/L) |
总铬(mg/L) |
总镍(mg/L) |
总汞(mg/L) |
||||
|
1 |
|
1#高炉冲渣补水口 |
2022.9.3 |
7.3 |
19 |
16 |
0.618 |
未检出 |
未检出 |
/ |
/ |
/ |
/ |
/ |
/ |
/ |
/ |
/ |
|
2 |
|
2#高炉冲渣补水口 |
2022.9.3 |
7.1 |
18 |
18 |
0.608 |
未检出 |
未检出 |
/ |
/ |
/ |
/ |
/ |
/ |
/ |
/ |
/ |
|
3 |
|
1#高炉冲渣回用水池内 |
2022.9.3 |
/ |
/ |
/ |
/ |
未检出 |
/ |
/ |
/ |
/ |
/ |
/ |
/ |
/ |
/ |
/ |
|
4 |
|
2#高炉冲渣回用水池内 |
2022.9.3 |
/ |
/ |
/ |
/ |
未检出 |
/ |
/ |
/ |
/ |
/ |
/ |
/ |
/ |
/ |
/ |
|
5 |
|
1#高炉冲渣补水口 |
2022.9.7 |
7.2 |
18 |
13 |
0.671 |
未检出 |
未检出 |
/ |
/ |
/ |
/ |
/ |
/ |
/ |
/ |
/ |
|
6 |
|
2#高炉冲渣补水口 |
2022.9.7 |
7.1 |
15 |
15 |
0.658 |
未检出 |
未检出 |
/ |
/ |
/ |
/ |
/ |
/ |
/ |
/ |
/ |
|
7 |
|
1#高炉冲渣回用水池内 |
2022.9.7 |
/ |
/ |
/ |
/ |
未检出 |
/ |
/ |
/ |
/ |
/ |
/ |
/ |
/ |
/ |
/ |
|
8 |
|
2#高炉冲渣回用水池内 |
2022.9.7 |
/ |
/ |
/ |
/ |
未检出 |
/ |
/ |
/ |
/ |
/ |
/ |
/ |
/ |
/ |
/ |
|
9 |
|
1#高炉冲渣补水口 |
2022.9.14 |
7.1 |
16 |
24 |
0.655 |
未检出 |
未检出 |
/ |
/ |
/ |
/ |
/ |
/ |
/ |
/ |
/ |
|
10 |
|
2#高炉冲渣补水口 |
2022.9.14 |
7.1 |
19 |
23 |
0.616 |
未检出 |
未检出 |
/ |
/ |
/ |
/ |
/ |
/ |
/ |
/ |
/ |
|
11 |
|
1#高炉冲渣回用水池内 |
2022.9.14 |
/ |
/ |
/ |
/ |
未检出 |
/ |
/ |
/ |
/ |
/ |
/ |
/ |
/ |
/ |
/ |
|
12 |
|
2#高炉冲渣回用水池内 |
2022.9.14 |
/ |
/ |
/ |
/ |
未检出 |
/ |
/ |
/ |
/ |
/ |
/ |
/ |
/ |
/ |
/ |
|
13 |
|
1#高炉冲渣补水口 |
2022.9.21 |
7.2 |
12 |
18 |
0.439 |
0.01L |
0.004L |
/ |
/ |
/ |
/ |
/ |
/ |
/ |
/ |
/ |
|
14 |
|
2#高炉冲渣补水口 |
2022.9.21 |
7.1 |
13 |
19 |
0.394 |
0.01L |
0.004L |
/ |
/ |
/ |
/ |
/ |
/ |
/ |
/ |
/ |
|
15 |
|
1#高炉冲渣回用水池内 |
2022.9.21 |
/ |
/ |
/ |
/ |
0.01L |
/ |
/ |
/ |
/ |
/ |
/ |
/ |
/ |
/ |
/ |
|
16 |
|
2#高炉冲渣回用水池内 |
2022.9.21 |
/ |
/ |
/ |
/ |
0.01L |
/ |
/ |
/ |
/ |
/ |
/ |
/ |
/ |
/ |
/ |
|
17 |
DW001 |
烧结球团脱硫车间废水排放口 |
2022.9.21 |
7.3 |
18 |
24 |
/ |
/ |
/ |
/ |
0.16 |
0.2L |
0.3L |
/ |
/ |
/ |
/ |
/ |
|
18 |
DW003 |
轧钢一车间废水排放口 |
2022.9.21 |
/ |
/ |
/ |
/ |
/ |
/ |
/ |
/ |
/ |
0.3L |
0.004L |
0.05L |
0.56 |
0.4 |
0.04L |
|
19 |
DW004 |
轧钢一车间废水排放口 |
2022.9.21 |
/ |
/ |
/ |
/ |
/ |
/ |
/ |
/ |
/ |
0.0004 |
0.004L |
0.05L |
0.59 |
0.38 |
0.04L |
|
20 |
|
1#高炉冲渣补水口 |
2022.9.28 |
7.3 |
18 |
16 |
0.455 |
未检出 |
/ |
/ |
/ |
/ |
/ |
/ |
/ |
/ |
/ |
/ |
|
21 |
|
2#高炉冲渣补水口 |
2022.9.28 |
7.2 |
15 |
12 |
0.598 |
未检出 |
/ |
/ |
/ |
/ |
/ |
/ |
/ |
/ |
/ |
/ |
|
22 |
|
1#高炉冲渣回用水池内 |
2022.9.28 |
/ |
/ |
/ |
/ |
未检出 |
/ |
/ |
/ |
/ |
/ |
/ |
/ |
/ |
/ |
/ |
|
23 |
|
2#高炉冲渣回用水池内 |
2022.9.28 |
/ |
/ |
/ |
/ |
未检出 |
/ |
/ |
/ |
/ |
/ |
/ |
/ |
/ |
/ |
/ |
|
24 |
YS001 |
雨水排放口1 |
2022.9.17 |
7.3 |
18 |
16 |
0.608 |
/ |
/ |
/ |
0.56 |
/ |
/ |
/ |
/ |
/ |
/ |
/ |
|
25 |
YS002 |
雨水排放口2 |
2022.9.17 |
7.0 |
19 |
15 |
0.524 |
/ |
/ |
/ |
0.54 |
/ |
/ |
/ |
/ |
/ |
/ |
/ |
|
26 |
YS003 |
雨水排放口3 |
2022.9.17 |
7.2 |
15 |
16 |
0.550 |
/ |
/ |
/ |
0.54 |
/ |
/ |
/ |
/ |
/ |
/ |
/ |
|
27 |
YS004 |
雨水排放口4 |
2022.9.17 |
7.3 |
18 |
15 |
0.674 |
/ |
/ |
/ |
0.50 |
/ |
/ |
/ |
/ |
/ |
/ |
/ |
第三季度噪声监测结果表
|
序号 |
监测项目 |
|
监测日期 |
检测结果(dB(A)) |
|
1 |
厂界环境噪声(昼间) |
东厂界 |
2022.9.22 |
59.0 |
|
2 |
西厂界 |
2022.9.22 |
55.4 |
|
|
3 |
南厂界 |
2022.9.22 |
51.6 |
|
|
4 |
北厂界 |
2022.9.22 |
53.4 |
|
|
5 |
厂界环境噪声(夜间) |
东厂界 |
2022.9.22 |
43.6 |
|
6 |
西厂界 |
2022.9.22 |
42.8 |
|
|
7 |
南厂界 |
2022.9.22 |
45.3 |
|
|
8 |
北厂界 |
2022.9.22 |
48.3 |
|
|
9 |
周围敏感点(昼间) |
1#东小官村 |
2022.9.22 |
54.5 |
|
10 |
2#官庄村 |
2022.9.22 |
54.5 |
|
|
11 |
3#朝阳社区 |
2022.9.22 |
51.5 |
|
|
12 |
周围敏感点(夜间) |
1#东小官村 |
2022.9.22 |
44.2 |
|
13 |
2#官庄村 |
2022.9.22 |
44.2 |
|
|
14 |
3#朝阳社区 |
2022.9.22 |
41.8 |
四、部分点位未监测原因
无。
上一篇:污染源监测信息披露
